biz buy fav history ietanstyle mail mypage reform rent search sell tel house land mansion print point panorama save movie view door qanda useful office input lock label crown train add marker historyCheck catalogM catalogT catalogHG voice bus

<いい家探せる> ietan.jp(イエタン.jp)

大成有楽不動産販売

不動産の売買なら大成有楽不動産販売|ietan(イエタン)

Menu

トップ
マイページ
  1. 不動産売買ならietan
  2. 事業用不動産
  3. 品川区南品川2丁目6-1事務所

品川区南品川2丁目6-1事務所

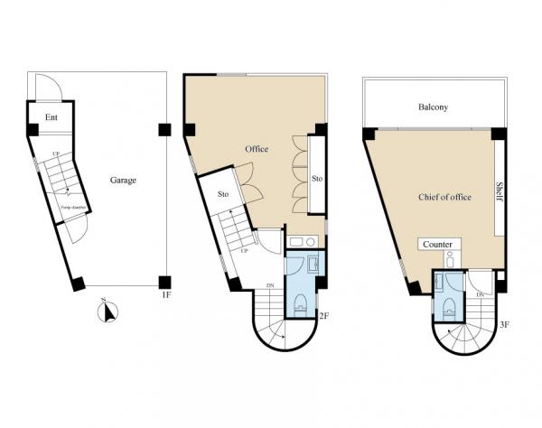
1階駐車場、2階に事務室、3階は社長室や会議室など◎/車種によっては2台駐車可/ガラス張りで開放感があり、LEDライト改修工事済みで明るい室内/前テナントは会計事務所/3階にバルコニー付きガス無し 禁煙 ペット不可 楽器不可設備オーナー機能保証なし 退去時ハウスクリーニング・エアコン洗浄費用負担あり 火災保険料6,410円年毎

30.8万円

  • 管理費:なし
所在地
東京都品川区南品川2
交通
京浜急行電鉄本線「青物横丁」駅 徒歩4分
京浜東北・根岸線「大井町」駅 徒歩14分
東京臨海高速鉄道「品川シーサイド」駅 徒歩12分
間取り
-
専有面積
58.78㎡
築年月
1992年12月
階建
-/3階
敷金
84万円
礼金
30.8万円
  • 外観
  • 間取り
  • 事務所
  • 社長室
  • キッチン
  • 洗面所
  • トイレ
  • バルコニー
  • 設備
  • セキュリティ
  • 眺望
  • 駐車場

もっと見る

設備・物件のこだわりポイント

立地・交通
  • 駅徒歩5分以内

  • 複数路線利用可

物件概要

物件名物件情報の見方
品川区南品川2丁目6-1事務所
所在地物件情報の見方
東京都品川区南品川2

地図を見る

交通物件情報の見方
京浜急行電鉄本線「青物横丁」駅 徒歩4分
京浜東北・根岸線「大井町」駅 徒歩14分
東京臨海高速鉄道「品川シーサイド」駅 徒歩12分
専有面積物件情報の見方
58.78㎡(17.78坪)
バルコニー面積物件情報の見方
-
間取り物件情報の見方
-
築年月物件情報の見方
1992年12月
構造・階建て物件情報の見方
鉄骨 -/3階
管理費物件情報の見方
なし
損害保険料物件情報の見方
2年(6,410円)
その他初期費用
-
駐車場物件情報の見方
有 無料
バイク置き場物件情報の見方
-
駐輪場
-
管理形態/管理人情報物件情報の見方
-
更新料物件情報の見方
1.0ヶ月
方位物件情報の見方
-
定期借家物件情報の見方
-
現況物件情報の見方
空室
入居可能日
即時
賃貸保証内容
日本セーフティ― ジェイリース初回100% 毎年10% 毎月330円
フリーレント物件情報の見方
-
備考
ガス無し 禁煙 ペット不可 楽器不可設備オーナー機能保証なし 退去時ハウスクリーニング・エアコン洗浄費用負担あり 火災保険料6,410円年毎
情報更新日物件情報の見方
2025/12/05
次回更新日物件情報の見方
2025/12/12
取引形態物件情報の見方
仲介

※本ページの記載内容は、情報更新日現在の情報です。また、記載内容と現状が異なる場合には現状を優先します。取引態様が仲介の場合には物件価格の他に仲介手数料及び消費税相当額を申しうけます。

最近見た物件

    • 賃貸

    美しが丘レジデンス

    52.8万円

    神奈川県横浜市青葉区美しが丘2
    東急田園都市線「たまプラーザ」駅 徒歩4分

    • 賃貸

    グレナデン四谷三丁目

    22万円

    東京都新宿区四谷3
    東京メトロ丸ノ内線「四谷三丁目」駅 徒歩1分