biz buy fav history ietanstyle mail mypage reform rent search sell tel house land mansion print point panorama save movie view door qanda useful office input lock label crown train add marker historyCheck catalogM catalogT catalogHG voice bus

<いい家探せる> ietan.jp(イエタン.jp)

大成有楽不動産販売

不動産の売買なら大成有楽不動産販売|ietan(イエタン)

Menu

トップ
マイページ
  1. 不動産の売買はietan(イエタン)
  2. 不動産の購入
  3. 東京都
  4. パノラマ物件一覧

東京都の
パノラマ物件を検索

ご自宅でお好きな時に物件見学!
お部屋の細部までご確認いただけます。

36

表示件数:
並び替え:

チェックした物件をまとめて

    • 中古マンション

    シティインデックス千代田秋葉原

    • パノラマあり

    7,890万円

    • 日比谷線「秋葉原」駅 徒歩5分
    • 東京都千代田区神田佐久間町3丁目
    間取り
    1LDK
    専有面積
    40.04㎡
    築年月
    2017年07月
    所在階
    3/14階
    採光方位
    総戸数
    57戸
    • 駅徒歩5分以内
    • 南向き(南東・南西含)
    • 角部屋
    • ペット可(規約あり)
    • 築後5年以内
    • 空家・空室

    ■室内動画(パノラマ)配信中!!!是非ご覧下さい。■複数路線利用可(山手線、京浜東北線、日比谷線、つくばエクスプレス線)■2017年11月築。■3階部分、40.04㎡ 2面採光の1LDK住戸■居室、リビングダイニング、浴室に窓が配置され、 風通しが良いお部屋。■居室には約1.6帖のウォークインクローゼット、 廊下にも物入が設けられ、収納豊富。■玄関から居住空間が見えない、プライバシーに配慮した 間取。■床暖房(LD)・浴室乾燥機・温水機能便座等、設備充実

    • 中古マンション

    リストレジデンス上野黒門町

    • パノラマあり

    7,490万円

    • 千代田線「湯島」駅 徒歩2分
    • 東京都台東区上野1丁目
    間取り
    1LDK
    専有面積
    38.95㎡
    築年月
    2017年08月
    所在階
    3/15階
    採光方位
    総戸数
    27戸
    • 駅徒歩5分以内
    • 南向き(南東・南西含)
    • 角部屋
    • ペット可(規約あり)
    • 築後5年以内
    • 空家・空室

    ■7路線7駅以上利用可能■全住戸南向き角住戸■ホテルライクな内廊下設計■自由度の高い大型収納付き【ウォークインクローゼットやトールタイプのシューズインクローゼット】■LDにTES式床暖房付き■省エネエコロジーに貢献のECOジョーズ採用〜充実の水回り〜■オープンスタイルのキッチン【食洗機、シングルレバーシャワー水栓】■浴室はフルオートバス、浴室暖房乾燥機付き■タンクレスタイプの節水型トイレ

    • 中古マンション

    クレッセント東京ヴュータワー

    • パノラマあり

    17,480万円

    • 都営新宿線「森下」駅 徒歩5分
    • 東京都江東区新大橋1丁目
    間取り
    4LDK
    専有面積
    94.37㎡
    築年月
    2005年02月
    所在階
    6/24階
    採光方位
    南西
    総戸数
    165戸
    • 駅徒歩5分以内
    • 南向き(南東・南西含)
    • 角部屋
    • ペット可(規約あり)
    • 築後5年以内
    • 空家・空室

    ■6階部分 南西/南東の角部屋 94.37㎡ 4LDK ■駅徒歩5分の快適なアプローチ / 隅田川を臨む、リバービューバルコニー ■2018年9月 内装リフォーム済み(壁紙・フローリング張替 等)■都営新宿線・都営大江戸線『森下』駅徒歩5分 ■総武線『両国』駅徒歩12分 ■東京メトロ半蔵門線「清澄白河」駅徒歩14分 ■総戸数165世帯のビッグコミュニティ ■ペット飼育細則有(犬猫計2匹迄可) ■住まいの遮音性を高めた二重床・二重天井構造 ■リビングダイニングにTES温水式床暖房、陽当り・眺望良好

    • 中古マンション

    築地武蔵野マンション

    • パノラマあり

    4,980万円

    • 有楽町線「新富町」駅 徒歩2分
    • 東京都中央区築地3丁目
    間取り
    1LDK
    専有面積
    38.16㎡
    築年月
    1971年09月
    所在階
    2/13階
    採光方位
    南東
    総戸数
    80戸
    • 駅徒歩5分以内
    • 南向き(南東・南西含)
    • 角部屋
    • ペット可(規約あり)
    • 築後5年以内
    • 空家・空室

    3駅3路線利用可能な角部屋住戸!「百聞は一見に如かず」是非一度、ご内覧下さいませ。

    • 中古マンション

    グローベルザ・マークス目白

    • パノラマあり

    8,780万円

    • 西武池袋線「椎名町」駅 徒歩5分
    • 東京都豊島区目白5丁目
    間取り
    2LDK
    専有面積
    55.86㎡
    築年月
    2011年10月
    所在階
    3/12階
    採光方位
    総戸数
    43戸
    • 駅徒歩5分以内
    • 南向き(南東・南西含)
    • 角部屋
    • ペット可(規約あり)
    • 築後5年以内
    • 空家・空室

    【55.86㎡、2LDK+WIC、3階、南西向き ペット飼育可(細則有)】■リビングダイニングにはTES温水式床暖房、浴室には浴室暖房換気乾燥機を完備■ウォークインクローゼット1カ所、壁面収納、キッチンパントリー等 収納力の高いお部屋です。■非接触キー、オートロック、セコムマンションシステム、防犯仕様の玄関ドア等 安心のセキュリティ。■リビングダイニングは家具の配置がしやすいアウトフレーム設計

    • 中古マンション

    イニシア千住曙町

    • パノラマあり

    11,500万円

    • 京成本線「京成関屋」駅 徒歩5分
    • 東京都足立区千住曙町
    間取り
    3LDK
    専有面積
    94.78㎡
    築年月
    2009年01月
    所在階
    5/24階
    採光方位
    南西
    総戸数
    515戸
    • 駅徒歩5分以内
    • 南向き(南東・南西含)
    • 角部屋
    • ペット可(規約あり)
    • 築後5年以内
    • 空家・空室

    ■バルコニーからスカイツリーや隅田川が望めます■窓付き1620サイズの浴室■遮音性能能に優れた二重床・二重天井■TVモニター付きインターホン■パークサイドカフェやゲストルーム等の共用施設有

    【マンションカタログ】イニシア千住曙町のマンション情報を見る外部サイト

    • 中古マンション

    ザ・グランフォーリア目黒オープンスクエア

    • パノラマあり

    8,180万円

    • 山手線「目黒」駅 徒歩9分
    • 東京都目黒区下目黒3丁目
    間取り
    1LDK
    専有面積
    44.89㎡
    築年月
    2012年01月
    所在階
    6/11階
    採光方位
    南東
    総戸数
    20戸
    • 駅徒歩5分以内
    • 南向き(南東・南西含)
    • 角部屋
    • ペット可(規約あり)
    • 築後5年以内
    • 空家・空室

    ■2駅4路線利用可■6階部分、44.89㎡ 4面採光の1LDK住戸■ 居室、LD、キッチン、浴室、トイレ、玄関に窓が配置され、風通しが良く、明るいお部屋。■大通りから反対住戸の為、音も響きにくい。■玄関から居住空間が見えず、プライバシーに配慮した間取。■床暖房(LD)・浴室乾燥機・浴室TV・温水機能便座等、設備充実。■セコムホームセキュリティ導入マンション(任意加入)■ご不在時にも安心、クリーニングポスト付の宅配BOX。■ペット飼育可。

    • 中古マンション

    アウルタワー

    • パノラマあり

    24,800万円

    • 有楽町線「東池袋」駅 徒歩2分
    • 東京都豊島区東池袋4丁目
    間取り
    3LDK
    専有面積
    71.49㎡
    築年月
    2011年01月
    所在階
    43/52階
    採光方位
    南東
    総戸数
    608戸
    • 駅徒歩5分以内
    • 南向き(南東・南西含)
    • 角部屋
    • ペット可(規約あり)
    • 築後5年以内
    • 空家・空室

    ・43階角住戸・眺望良好・大成建設株式会社施工・二重床・二重天井構造、超高強度コンクリート・24時間ゴミ出し可、ペット飼育可(細則あり)・東池袋駅徒歩2分・LD部分にTES温水式床暖房あり〜リフォーム履歴 (2022年6月)〜■新規交換(キッチン、浴室、洗面台、トイレ)■フローリング一部張替■クロス一部貼替※管理費内訳:全体管理費月額4,940円、住宅管理費月額16,090円※修繕積立金内訳:全体修繕積立金月額8,440円、住宅修繕積立金月額11,870円

    【マンションカタログ】OWLTOWER(アウルタワー)のマンション情報を見る外部サイト

    • 中古マンション

    ブリリア有明シティタワー

    • パノラマあり

    12,800万円

    • ゆりかもめ「有明テニスの森」駅 徒歩10分
    • 東京都江東区有明1丁目
    間取り
    3LDK
    専有面積
    65.88㎡
    築年月
    2014年12月
    所在階
    10/33階
    採光方位
    南東
    総戸数
    600戸
    • 駅徒歩5分以内
    • 南向き(南東・南西含)
    • 角部屋
    • ペット可(規約あり)
    • 築後5年以内
    • 空家・空室

    免震構造 内廊下 24時間有人管理 各階にダストステーションあり 各種共用施設あり ウォークインクローゼット、シューズインクローゼットあり※インターネット使用料:月額1,188円 CATV使用料:月額110円

    【マンションカタログ】ブリリア有明シティタワーのマンション情報を見る外部サイト

    • 中古マンション

    スカイフォレストレジデンス

    • パノラマあり

    18,880万円

    • 山手線「高田馬場」駅 徒歩7分
    • 東京都新宿区大久保3丁目
    間取り
    3LDK
    専有面積
    76.29㎡
    築年月
    2014年12月
    所在階
    10/26階
    採光方位
    南東
    総戸数
    361戸
    • 駅徒歩5分以内
    • 南向き(南東・南西含)
    • 角部屋
    • ペット可(規約あり)
    • 築後5年以内
    • 空家・空室

    ■床近くから天井まで壁一面の【ダイナミックパノラマウインドウ】■開放感あふれるLD【天井高約2.6m】【天井カセット型エアコン】■快適な室内空間を作り出す【2重サッシ】&【複層ガラス】■体を芯から温める【TES温水床暖房(LD)】■キッチンは【食器洗浄乾燥機付き】■空間を美しく演出する【三面鏡付洗面化粧台】【天然石洗面カウンター】■バスタイムを快適に 【TES式浴室暖房乾燥機付き】■ゆったりとしたトイレ空間【タンクレス温水洗浄機能付きトイレ】【手洗いカウンター付】

    • 中古マンション

    ミディオンソレイユレジデンス

    • パノラマあり

    5,680万円

    • 常磐緩行線「金町」駅 徒歩12分
    • 東京都葛飾区南水元3丁目
    間取り
    3LDK
    専有面積
    76.56㎡
    築年月
    2005年02月
    所在階
    10/15階
    採光方位
    南西
    総戸数
    700戸
    • 駅徒歩5分以内
    • 南向き(南東・南西含)
    • 角部屋
    • ペット可(規約あり)
    • 築後5年以内
    • 空家・空室

    ●約3万㎡の緑あふれる広大な敷地に佇む、総戸数700戸のビッグコミュニティマンション●15階建10階部分、南西向き。・前面に遮るものが無く、開放感のある眺望と、日当たり良好。・リビング部分は2面採光●奥行き約2.0mのバルコニー、スロップシンク有り。●トランクルーム、WIC、約0.8帖の納戸があり、収納豊富。●ペット相談可(細則有)●花の木保育園、花の木小学校、金町中学校がマンション道路向かいの立地。●充実したマンション共用部(一部有償)

    【マンションカタログ】ミディオンのマンション情報を見る外部サイト

    • 中古マンション

    クレヴィスタ浅草Ⅱ

    • パノラマあり

    5,480万円

    • つくばEX「浅草」駅 徒歩16分
    • 東京都台東区東浅草1丁目
    間取り
    1LDK
    専有面積
    46.24㎡
    築年月
    2019年06月
    所在階
    10/10階
    採光方位
    西
    総戸数
    55戸
    • 駅徒歩5分以内
    • 南向き(南東・南西含)
    • 角部屋
    • ペット可(規約あり)
    • 築後5年以内
    • 空家・空室

    2019年6月築、最上階角住戸!大通りから1本入った閑静な住宅地に立地!コンビニやスーパー等の生活施設が集積する利便性!

    • 中古マンション

    グレイス日暮里

    • パノラマあり

    3,280万円

    • 山手線「日暮里」駅 徒歩7分
    • 東京都荒川区東日暮里6丁目
    間取り
    1LDK
    専有面積
    34.56㎡
    築年月
    1987年02月
    所在階
    2/5階
    採光方位
    総戸数
    32戸
    • 駅徒歩5分以内
    • 南向き(南東・南西含)
    • 角部屋
    • ペット可(規約あり)
    • 築後5年以内
    • 空家・空室

    【マンションカタログ】グレイス日暮里のマンション情報を見る外部サイト

    • 中古マンション

    グランパーク代々木公園

    • パノラマあり

    15,800万円

    • 千代田線「代々木公園」駅 徒歩2分
    • 東京都渋谷区富ヶ谷1丁目
    間取り
    2LDK
    専有面積
    62.08㎡
    築年月
    1996年10月
    所在階
    3/8階
    採光方位
    西
    総戸数
    14戸
    • 駅徒歩5分以内
    • 南向き(南東・南西含)
    • 角部屋
    • ペット可(規約あり)
    • 築後5年以内
    • 空家・空室

    【当社売主×リノベ】〜スケルトンからフルリフォーム施工〜新規内装リフォーム完了【2026年4月完了】■トイレ交換 ■ユニットバス交換(浴室乾燥機付き)■システムキッチン交換■クロス貼り替え ■給湯器交換 ■ハウスクリーニング等・リビングダイニングとキッチンにTES温水式床暖房設置・浴室乾燥機付・対面式キッチン・食洗器浄水器一体型水栓・角部屋・西南北側開口部・ペット飼育可(飼育細則有)

    オープンハウス開催日時
    • 2026.05.30 (土) 10:00 ~ 17:00
    • 2026.05.31 (日) 10:00 ~ 17:00

    予約制内覧会を開催◇ ご予約の際は 『0120-540-911』 までお気軽にご連絡下さい♪

    【マンションカタログ】グランパーク代々木公園のマンション情報を見る外部サイト

    • 中古マンション

    練馬区石神井町4丁目 コーポラティブハウス

    • パノラマあり

    8,800万円

    • 西武池袋線「石神井公園」駅 徒歩9分
    • 東京都練馬区石神井町4丁目
    間取り
    2LDK
    専有面積
    81.49㎡
    築年月
    2007年12月
    所在階
    1/2階
    採光方位
    総戸数
    5戸
    • 駅徒歩5分以内
    • 南向き(南東・南西含)
    • 角部屋
    • ペット可(規約あり)
    • 築後5年以内
    • 空家・空室

    ■西武池袋・豊島線「石神井公園」駅徒歩9分■2LDK+納戸+ルーフバルコニー■こだわりの分譲時設計のコーポラティブハウス・戸建て感覚の1、2階のメゾネットタイプ・広めの窓やトップライトを設けた明るいリビング・屋上に開放的なルーフバルコニー■急行停車駅 西武池袋線「石神井公園」駅徒歩9分■2024年12月 共用部分大規模修繕工事完了■浴室換気乾燥機

    • 中古マンション

    ディアナコート文京本郷台

    • パノラマあり

    24,900万円

    • 千代田線「湯島」駅 徒歩3分
    • 東京都文京区湯島3丁目
    間取り
    3LDK
    専有面積
    83.00㎡
    築年月
    2017年09月
    所在階
    14/14階
    採光方位
    総戸数
    127戸
    • 駅徒歩5分以内
    • 南向き(南東・南西含)
    • 角部屋
    • ペット可(規約あり)
    • 築後5年以内
    • 空家・空室

    文京区×駅徒歩3分×127邸 2017年築/千代田線「湯島」駅徒歩3分本郷台地の高台に佇む、駅近大規模レジデンス。最寄り駅から徒歩3分と利便性が高く、由緒ある湯島天神や、広大な上野恩賜公園が身近にある、都市機能と自然のバランスが良い住環境です。■南・東の角住戸・3LDK■専有面積:83.00㎡■バルコニー面積:10.36㎡■サービスバルコニー面積:4.97㎡

    • 中古マンション

    スカイクレストビュー芝浦

    • パノラマあり

    8,980万円

    • 山手線「田町」駅 徒歩15分
    • 東京都港区海岸3丁目
    間取り
    3LDK
    専有面積
    60.40㎡
    築年月
    2011年02月
    所在階
    2/9階
    採光方位
    南東
    総戸数
    49戸
    • 駅徒歩5分以内
    • 南向き(南東・南西含)
    • 角部屋
    • ペット可(規約あり)
    • 築後5年以内
    • 空家・空室

    湾岸に佇む!室内は大変丁寧にお使いです!百聞は一見に如かず。是非、一度内覧くださいませ♪

    【マンションカタログ】スカイクレストビュー芝浦のマンション情報を見る外部サイト

    • 中古マンション

    シティタワー池袋

    • パノラマあり

    7,380万円

    • 山手線「池袋」駅 徒歩12分
    • 東京都豊島区東池袋2丁目
    間取り
    1LDK
    専有面積
    41.39㎡
    築年月
    2003年08月
    所在階
    5/26階
    採光方位
    北東
    総戸数
    217戸
    • 駅徒歩5分以内
    • 南向き(南東・南西含)
    • 角部屋
    • ペット可(規約あり)
    • 築後5年以内
    • 空家・空室

    住友不動産(株)旧分譲×大成建設(株)施工〜総戸数217戸、26階建て免震構造タワーレジデンス〜■複路線利用可JR山手線「池袋」駅 徒歩12分東京メトロ有楽町線「東池袋」駅 徒歩11分JR山手線「大塚」駅 徒歩10分■専有面積:41.39平米 1LDK 北東×北西 角住戸■バルコニーは8m超で奥行きも2mと広々スペース・ホテルライクな内廊下設計・ペット飼育可(飼育細則による制限有り)・ディスポーザー付システムキッチン・LDにTES温水式床暖房・宅配BOX設置

    【マンションカタログ】シティタワー池袋のマンション情報を見る外部サイト

    • 中古マンション

    デュオ・スカーラ高輪

    NO PHOTO
    NO PHOTO
    • パノラマあり

    6,490万円

    • 都営浅草線「泉岳寺」駅 徒歩3分
    • 東京都港区高輪2丁目
    間取り
    1DK
    専有面積
    34.73㎡
    築年月
    2002年09月
    所在階
    1/4階
    採光方位
    総戸数
    32戸
    • 駅徒歩5分以内
    • 南向き(南東・南西含)
    • 角部屋
    • ペット可(規約あり)
    • 築後5年以内
    • 空家・空室

    • 中古マンション

    ヴェレーナシティ東京イーストガーデンズ

    • パノラマあり

    8,680万円

    • 東西線「南砂町」駅 徒歩12分
    • 東京都江東区東砂7丁目
    間取り
    3LDK
    専有面積
    70.30㎡
    築年月
    2018年07月
    所在階
    2/13階
    採光方位
    総戸数
    128戸
    • 駅徒歩5分以内
    • 南向き(南東・南西含)
    • 角部屋
    • ペット可(規約あり)
    • 築後5年以内
    • 空家・空室

    ・東・北・西三方角住戸 L字型バルコニー ・2018年7月築マンション ・リビング部分:TES式温水床暖房完備・対面式のシステムキッチン:天然御影石天板/食器洗乾燥機/浄水器一体型水栓 ・1418サイズワイドユニットバス:ミストサウナ付き浴室換気乾燥機/フルオートバス ・洗面所:三面鏡収納付洗面化粧台/ヘルスメータースペース・トイレ:節水/温水洗浄機能付き ・2部屋にウォークインクローゼット付き ・24時間ゴミ出し可能・大切なペットと一緒に暮らせます(細則有) 

    • 中古マンション

    ディアナコート文京本郷台

    • パノラマあり

    8,680万円

    • 千代田線「湯島」駅 徒歩3分
    • 東京都文京区湯島3丁目
    間取り
    1LDK
    専有面積
    35.06㎡
    築年月
    2017年09月
    所在階
    4/14階
    採光方位
    総戸数
    127戸
    • 駅徒歩5分以内
    • 南向き(南東・南西含)
    • 角部屋
    • ペット可(規約あり)
    • 築後5年以内
    • 空家・空室

    文京区×駅徒歩3分×127邸 2017年築千代田線「湯島」駅徒歩3分他、6駅7路線利用可本郷台地の高台に仕む駅近大規模レジデンス最寄り駅から徒歩3分と利便性の高いロケーション由緒ある湯島天神や、広大な上野恩賜公園が身近にある、都市機能と自然のバランスが良好な住環境にあるレジデンス共用廊下にはプライバシー性に配慮された内廊下設計を採用※駐車場:空有 月額35,000円〜40,000円(2026年1月15日現在)※一括受電方式の導入:有 (契約先:アルテリア・ネットワークス)

    • 中古マンション

    シテヌーブ北千住30

    • パノラマあり

    9,480万円

    • 伊勢崎線「牛田」駅 徒歩5分
    • 東京都足立区千住曙町
    間取り
    3LDK
    専有面積
    105.36㎡
    築年月
    1990年11月
    所在階
    14/30階
    採光方位
    総戸数
    223戸
    • 駅徒歩5分以内
    • 南向き(南東・南西含)
    • 角部屋
    • ペット可(規約あり)
    • 築後5年以内
    • 空家・空室

    ■A棟〜C棟全体総戸数408戸の大規模マンション■24時間有人管理のセキュリティ(夜間警備員)■14階部分につき眺望良好■東・南向きの2面採光のLDKは約22帖■LDに安全でクリーンな電気式床暖房■LDと各居室にビルトインエアコンを設置■キッチンには食洗器とIHクッキングヒーター■24時間ゴミ出し可能■ペット飼育可(細則有)■ホテルライクな内廊下設計■素材と意匠にこだわった洗練のリノベーション(2021年8月実施済):システムキッチン・浴室・トイレ・洗面台交換/フローリング張替/全室クロス貼替他

    • 中古マンション

    ブランズ日本橋茅場町

    • パノラマあり

    19,000万円

    • 東西線「茅場町」駅 徒歩2分
    • 東京都中央区日本橋茅場町3丁目
    間取り
    3LDK
    専有面積
    69.20㎡
    築年月
    2013年02月
    所在階
    12/15階
    採光方位
    南東
    総戸数
    88戸
    • 駅徒歩5分以内
    • 南向き(南東・南西含)
    • 角部屋
    • ペット可(規約あり)
    • 築後5年以内
    • 空家・空室

    ■大成有楽不動産販売都心営業部取扱物件 ■東急不動産株式会社旧分譲 ・複数駅複数路線利用可能 ・2013年2月築 ・ホテルライクな内廊下設計 ・不在時に荷物の受取に便利な宅配ボックス ・来訪者の顔が確認可能なTVモニター付インターホン ・24時間ゴミ出し可能 ・ペット飼育可能(規約有) ・15階建12階部分、南東北東向き角住戸 ・ご家族との会話を愉しみながら家事が可能なカウンターキッチン ・リビングダイニング部分に床暖房

    【マンションカタログ】ブランズ日本橋茅場町のマンション情報を見る外部サイト

    • 中古マンション

    大島スカイハイツ

    • パノラマあり

    4,090万円

    価格更新しました!

    • 都営新宿線「大島」駅 徒歩13分
    • 東京都江東区東砂1丁目
    間取り
    3LDK
    専有面積
    61.60㎡
    築年月
    1979年03月
    所在階
    11/11階
    採光方位
    総戸数
    226戸
    • 駅徒歩5分以内
    • 南向き(南東・南西含)
    • 角部屋
    • ペット可(規約あり)
    • 築後5年以内
    • 空家・空室

    ・2016年12月室内リノベーション履歴有り(洗面台、浴室、キッチン、給湯器交換等)・最上階11階東向き住戸・総戸数226戸のビッグコミュニティマンション・対面式のシステムキッチン:食器洗乾燥機完備、3口ガスコンロ・全室収納有り・大切なペットと一緒に暮らせます(細則有) 【周辺環境】・セブンイレブン江東東砂1丁目店:約140m(徒歩2分)・ヨークマート東砂店:約30m(徒歩1分)・サンドラッグ 東砂店:約20m(徒歩1分)・江東区立東砂小学校:約640m(8分)

    【マンションカタログ】大島スカイハイツのマンション情報を見る外部サイト

    • 中古マンション

    パレステージ上野

    • パノラマあり

    14,480万円

    価格更新しました!

    • 山手線「上野」駅 徒歩5分
    • 東京都台東区上野7丁目
    間取り
    3LDK
    専有面積
    64.53㎡
    築年月
    2017年01月
    所在階
    10/14階
    採光方位
    北東
    総戸数
    60戸
    • 駅徒歩5分以内
    • 南向き(南東・南西含)
    • 角部屋
    • ペット可(規約あり)
    • 築後5年以内
    • 空家・空室

    ビックターミナル「上野」駅徒歩5分の好立地!10階部分南西×北東角住戸!2025年11月中旬新規内装リフォーム完了済!■新規設置/LDK床暖房、浴室乾燥機、エアコン、ピクチャーレール■交換/システムキッチン(オールインワン浄水器、人造大理石天板他)洗面(シングルレバーシャワー水栓、一体成型カウンター)洗濯機水栓、洗濯パン、タンクレストイレ、トイレ手洗■貼替/床、天井、クロス

    • 中古マンション

    グランマークスツインフォート B棟

    • パノラマあり

    5,480万円

    • 日暮里舎人「足立小台」駅 徒歩5分
    • 東京都足立区小台1丁目
    間取り
    3LDK
    専有面積
    75.93㎡
    築年月
    2012年01月
    所在階
    8/14階
    採光方位
    南西
    総戸数
    138戸
    • 駅徒歩5分以内
    • 南向き(南東・南西含)
    • 角部屋
    • ペット可(規約あり)
    • 築後5年以内
    • 空家・空室

    ■日暮里舎人ライナー「足立小台」駅 徒歩5分の立地■スーパー&ホームセンターが徒歩2分■総戸数248戸の大規模コミュニティ(A棟・B棟合計)■高規格堤防(スーパー堤防)特別区域内に位置しています■床暖房(LD)やディスポーザーなど室内設備が充実■日当たりのよい南西向きバルコニー 奥行き2m■ペット飼育可(飼育細則あり)

    【マンションカタログ】グランマークスツインフォートのマンション情報を見る外部サイト

    • 中古マンション

    レガリアシティ浅草リバーサイド

    • パノラマあり

    7,480万円

    • 銀座線「浅草」駅 徒歩8分
    • 東京都台東区浅草6丁目
    間取り
    2LDK
    専有面積
    53.35㎡
    築年月
    2001年10月
    所在階
    4/11階
    採光方位
    総戸数
    20戸
    • 駅徒歩5分以内
    • 南向き(南東・南西含)
    • 角部屋
    • ペット可(規約あり)
    • 築後5年以内
    • 空家・空室

    隅田川のそばで、下町の表情と都会的な利便がひとつになる浅草アドレス。■2001年11月築 4方向角住戸につき陽当たり通風良好です。■東京メトロ銀座線「浅草」駅徒歩8分他、都営浅草線、スカイツリーラインも利用可能な好立地■廊下を最小限に抑え、居室・収納に振り分けた無駄の少ないレイアウト。■浴室には浴室乾燥機付き■モニター付きオートロック、宅配ボックス付きで防犯面でも安心。■大事なペットも飼育可能(細則有)

    【マンションカタログ】レガリアシティ浅草リバーサイドのマンション情報を見る外部サイト

    • 中古一戸建住宅

    東京都江東区北砂1丁目の中古一戸建て

    • パノラマあり

    5,490万円

    • 半蔵門線「住吉」駅 徒歩17分
    • 東京都江東区北砂1丁目
    間取り
    4K
    建物面積
    100.59㎡
    土地面積
    60.87㎡
    築年月
    1997年09月
    構造
    木造
    階建
    3階建
    • 駅徒歩5分以内
    • 角地
    • 南道路
    • 駐車スペース有
    • 築後5年以内
    • 空家・空室
    • 公道に面する

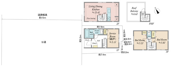
    ◎開口部が多く、明るい室内設計になっています。 ◎周辺には豊富な緑がありながら、商業施設も多く環境良好です。 ◎近隣に公園などもあり、子育て環境としても適しています。 ◎アリオ北砂まで徒歩2分(約120m) ◎前面は幅員8mの公道に面す ◎リフォームプランご提案いたします。 −仕様・構造・設備・特徴−■納戸 ■モニター付きインターホン ■トイレ2箇所 ■ビルトインガレージ ■浴室窓有り ■トイレ窓有り ■小型庭スペース有り etc.

    • 中古一戸建住宅

    東京都大田区田園調布5丁目の中古一戸建て

    • パノラマあり

    8,280万円

    • 東横線「田園調布」駅 徒歩15分
    • 東京都大田区田園調布5丁目
    間取り
    1LDK
    建物面積
    73.90㎡
    土地面積
    74.91㎡
    築年月
    2009年12月
    構造
    木造
    階建
    2階建
    • 駅徒歩5分以内
    • 角地
    • 南道路
    • 駐車スペース有
    • 築後5年以内
    • 空家・空室
    • 公道に面する

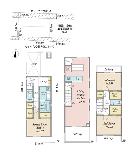
    〜落ち着いた住環境と利便性を兼ね備えた物件が登場〜緑豊かな街並みと品のある住宅街で、ゆったりとした時間をお過ごしいただけます■設計・施工:三井ホーム株式会社■公道に面す■角地■1LDK+小屋裏収納

    • 中古一戸建住宅

    東京都練馬区大泉町2丁目の中古一戸建て

    • パノラマあり

    6,380万円

    • 西武池袋線「大泉学園」駅 バス12分「もみじ山」バス停 徒歩5分
    • 東京都練馬区大泉町2丁目
    間取り
    3LDK
    建物面積
    86.66㎡
    土地面積
    91.45㎡
    築年月
    2022年02月
    構造
    木造
    階建
    2階建
    • 駅徒歩5分以内
    • 角地
    • 南道路
    • 駐車スペース有
    • 築後5年以内
    • 空家・空室
    • 公道に面する

    2022年02月築3LDK!/17帖のワイドなリビング/駐車スペースあり/様々な用途でお使い頂けるアティックストレージ(屋根裏収納)/各居室収納あり

    • 中古一戸建住宅

    東京都板橋区徳丸6丁目の中古一戸建て

    • パノラマあり

    4,680万円

    • 東武東上線「東武練馬」駅 徒歩13分
    • 東京都板橋区徳丸6丁目
    間取り
    4LDK
    建物面積
    122.68㎡
    土地面積
    74.38㎡
    築年月
    1990年05月
    構造
    木造
    階建
    3階建
    • 駅徒歩5分以内
    • 角地
    • 南道路
    • 駐車スペース有
    • 築後5年以内
    • 空家・空室
    • 公道に面する

    4LDK+シャッター付ガレージハウス(※車種による)!東武東上線「東武練馬」駅徒歩13分!南面バルコニーで陽当たり良好!広々とした車庫スペースは収納スペースもあります!店舗・事務所の併用住宅として利用も出来ます!ご見学の際はお気軽にお問い合わせ下さい!お待ちしております!

    • 中古一戸建住宅

    東京都板橋区徳丸4丁目の中古一戸建て

    • パノラマあり

    7,980万円

    • 東武東上線「下赤塚」駅 徒歩10分
    • 東京都板橋区徳丸4丁目
    間取り
    2LDK
    建物面積
    91.09㎡
    土地面積
    100.02㎡
    築年月
    2021年01月
    構造
    木造
    階建
    2階建
    • 駅徒歩5分以内
    • 角地
    • 南道路
    • 駐車スペース有
    • 築後5年以内
    • 空家・空室
    • 公道に面する

    ■2021年1月築 2LDK ■東武東上線「下赤塚」駅 徒歩10分 ■ご家族みんなで寛げる18帖の広々リビング ■お料理しながらお子様を見守れるペニンシュラ型キッチン ■駐車場1台分(車種制限有)

    • 中古一戸建住宅

    東京都杉並区高井戸西3丁目の中古一戸建て

    • パノラマあり

    9,650万円

    • 井の頭線「高井戸」駅 徒歩10分
    • 東京都杉並区高井戸西3丁目
    間取り
    4LDK
    建物面積
    102.87㎡
    土地面積
    109.64㎡
    築年月
    1991年02月
    構造
    木造
    階建
    2階建
    • 駅徒歩5分以内
    • 角地
    • 南道路
    • 駐車スペース有
    • 築後5年以内
    • 空家・空室
    • 公道に面する

    ≪現況:空家のため気兼ねなくご見学いただけます≫■京王電鉄井の頭線「高井戸」駅徒歩10分、「富士見ヶ丘」駅徒歩11分 ■2010年12月リフォーム済:間取り変更等■ご家族やお客様との会話も楽しめる対面キッチン■全居室収納■小屋裏収納付き■駐車スペース1台分(車種に制限あり)■大通りから中に入った閑静な住宅街に存します【周辺環境】●杉並区立高井戸小学校…約825m●杉並区立宮前中学校…約739m●高井戸西公園…約130m●オーケー 杉並宮前店…約606m ●ローソン 杉並宮前一丁目店…約195m

    • 中古一戸建住宅

    東京都江東区北砂3丁目の中古一戸建て

    • パノラマあり

    5,990万円

    • 都営新宿線「西大島」駅 徒歩13分
    • 東京都江東区北砂3丁目
    間取り
    2SLDK
    建物面積
    96.17㎡
    土地面積
    93.54㎡
    築年月
    2005年11月
    構造
    木造
    階建
    3階建
    • 駅徒歩5分以内
    • 角地
    • 南道路
    • 駐車スペース有
    • 築後5年以内
    • 空家・空室
    • 公道に面する

    ◎開口部が多く、明るい室内設計になっています ◎周辺には豊富な緑がありながら、商業施設も多く環境良好です ◎隣接して公園などもあり、子育て環境としても適しています ◎砂町銀座商店街まで徒歩5分(約400m) ◎LDK部分広々15帖超 ※有効宅地面積58.42㎡ −仕様・構造・設備・特徴−■納戸 ■モニター付きインターホン ■トイレ2箇所 ■ビルトインガレージ(車種制限有り) ■浴室窓有り ■浴室1216タイプ ■北西の角地 ■浴室換気乾燥機 ■主寝室9.41帖 ■1階トイレ窓有り etc.

    • 中古一戸建住宅

    東京都荒川区町屋7丁目の中古一戸建て

    • パノラマあり

    5,980万円

    • 千代田線「町屋」駅 徒歩16分
    • 東京都荒川区町屋7丁目
    間取り
    3SLDK
    建物面積
    95.98㎡
    土地面積
    64.50㎡
    築年月
    2014年09月
    構造
    木造
    階建
    3階建
    • 駅徒歩5分以内
    • 角地
    • 南道路
    • 駐車スペース有
    • 築後5年以内
    • 空家・空室
    • 公道に面する

    ■3路線利用可能・東京メトロ千代田線「町屋」駅徒歩16分・京成電鉄本線「町屋」駅徒17分・都営荒川線「町屋駅前」駅徒歩16分■充実の設備仕様・浴室は浴室換気乾燥機付き・トイレは自動洗浄便座・玄関にはカラーモニターインターフォン付き

    • 中古一戸建住宅

    東京都練馬区西大泉4丁目の中古一戸建て

    • パノラマあり

    5,580万円

    • 西武池袋線「保谷」駅 徒歩30分
    • 東京都練馬区西大泉4丁目
    間取り
    5LDK
    建物面積
    104.33㎡
    土地面積
    130.61㎡
    築年月
    2019年10月
    構造
    木造
    階建
    2階建
    • 駅徒歩5分以内
    • 角地
    • 南道路
    • 駐車スペース有
    • 築後5年以内
    • 空家・空室
    • 公道に面する

    ◆敷地面積130㎡超え・駐車スペース2台分に加え庭も確保した広々な敷地!◆太陽光パネル・蓄電池・エコキュート導入済みで電気代を抑えた生活が可能です!◆延床面積100㎡超え・5LDKで広々とお過ごしいただけます!◆広々としたシューズボックス・全居室収納あり!◆周辺に公園が多く、自然豊かで静かな住環境です!◆提携銀行多数!住宅ローンのご相談はお任せください

チェックした物件をまとめて

36

お気に入りに追加しました。

検索条件を保存しました。

この検索条件は、すでに保存されています。

検索条件の保存は10件までです。

お手数ですが、検索条件をご確認ください。

保存した条件を確認する

検索条件を保存します

マイページ会員の方

メールアドレス
パスワード

ログインして追加

マイページ会員ではない方

マイページ登録せずに検索条件を保存します。
マイページに登録いただくとスマートフォンや複数のPCで共有できます。

検索条件を追加