biz buy fav history ietanstyle mail mypage reform rent search sell tel house land mansion print point panorama save movie view door qanda useful office input lock label crown train add marker historyCheck catalogM catalogT catalogHG voice bus

<いい家探せる> ietan.jp(イエタン.jp)

大成有楽不動産販売

不動産の売買なら大成有楽不動産販売|ietan(イエタン)

Menu

トップ
マイページ
  1. 不動産の売買はietan(イエタン)
  2. 不動産の購入
  3. 中古一戸建て
  4. 埼玉県
  5. 埼玉県市部の中古一戸建て一覧

埼玉県市部の中古一戸建てを検索

埼玉県市部の中古一戸建て購入・検索・販売はこちら。価格変更や新着物件などの情報も随時更新中!!価格、間取り、面積や立地・交通、住宅設備などの条件を指定した検索でご希望の物件を埼玉県市部の中古一戸建てからお探しいただけます。埼玉県市部の中古一戸建てなら大成有楽不動産販売のietan(イエタン)。

現在の検索条件

選択中の地域

埼玉県

  • 埼玉県市部 (68)
  • └川越市(7)
  • └川口市(20)
  • └所沢市(12)

すべて見る

絞り込み条件の変更はこちら
価格
建物面積
土地面積
間取り
築年数
駅からの徒歩分
情報

検索条件の追加

立地・交通
土地の特徴
部屋
収納
キッチン
浴室・トイレ
設備
セキュリティ
駐車場
その他
建物の特徴
取引条件
建物構造

該当物件数68

こだわり条件

68

表示件数:
並び替え:

チェックした物件をまとめて

    • NEW
    • 中古一戸建住宅

    埼玉県所沢市美原町4丁目の中古一戸建て

    5,680万円

    • 西武新宿線「新所沢」駅 徒歩15分
    • 埼玉県所沢市美原町4丁目
    間取り
    4LDK
    建物面積
    95.43㎡
    土地面積
    100.11㎡
    築年月
    2024年02月
    構造
    木造
    階建
    2階建
    • 駅徒歩5分以内
    • 角地
    • 南道路
    • 駐車スペース有
    • 築後5年以内
    • 空家・空室
    • 公道に面する

    • 中古一戸建住宅

    埼玉県志木市柏町2丁目の中古一戸建て

    3,280万円

    • 東武東上線「柳瀬川」駅 徒歩13分
    • 埼玉県志木市柏町2丁目
    間取り
    4LDK
    建物面積
    92.73㎡
    土地面積
    96.57㎡
    築年月
    2019年03月
    構造
    木造
    階建
    2階建
    • 駅徒歩5分以内
    • 角地
    • 南道路
    • 駐車スペース有
    • 築後5年以内
    • 空家・空室
    • 公道に面する

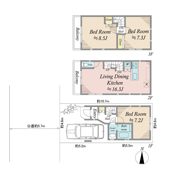
    ◆平成31年3月築 2階建 4LDK◆東武東上線「柳瀬川」駅徒歩13分、「志木」駅 徒歩20分◇土地面積96.57㎡(29.21坪) 建物面積92.73㎡(28.05坪)◇小学校、中学校が徒歩5分圏内、お子様にも安心の立地◇洋室3部屋は各6帖以上確保、1階には約3帖の畳コーナーあり◇LD部分は正方形に近い形で、家具の配置がしやすい設計◎◇約7帖の広々とした独立型キッチン◇スーパー、ホームセンターが徒歩10分圏内◇各居室収納◇春には柳瀬川沿いの桜が楽しめます

    • 中古一戸建住宅

    埼玉県上尾市大字平塚の中古一戸建て

    1,980万円

    • 湘南新宿高「上尾」駅 徒歩26分
    • 埼玉県上尾市大字平塚
    間取り
    2SLDK
    建物面積
    76.33㎡
    土地面積
    117.01㎡
    築年月
    2007年09月
    構造
    木造
    階建
    2階建
    • 駅徒歩5分以内
    • 角地
    • 南道路
    • 駐車スペース有
    • 築後5年以内
    • 空家・空室
    • 公道に面する

    • 中古一戸建住宅

    埼玉県上尾市日の出3丁目の中古一戸建て

    2,580万円

    • 伊奈線「原市」駅 徒歩24分
    • 埼玉県上尾市日の出3丁目
    間取り
    4LDK
    建物面積
    99.36㎡
    土地面積
    120.00㎡
    築年月
    2013年01月
    構造
    木造
    階建
    2階建
    • 駅徒歩5分以内
    • 角地
    • 南道路
    • 駐車スペース有
    • 築後5年以内
    • 空家・空室
    • 公道に面する

    • 中古一戸建住宅

    埼玉県三郷市中央2丁目の中古一戸建て

    5,980万円

    • つくばEX「三郷中央」駅 徒歩10分
    • 埼玉県三郷市中央2丁目
    間取り
    1LDK
    建物面積
    109.30㎡
    土地面積
    146.11㎡
    築年月
    2017年11月
    構造
    木造
    階建
    2階建
    • 駅徒歩5分以内
    • 角地
    • 南道路
    • 駐車スペース有
    • 築後5年以内
    • 空家・空室
    • 公道に面する

    ■つくばエクスプレス「三郷中央」駅徒歩10分 ■土地面積:146.11㎡(44.19坪)建物面積:109.30㎡(33.06坪)■全11棟の旧開発分譲地 ■駐車場2台分有り ■天井高最大3.6mのLDK(一部床暖房付き) ■アイランドキッチン仕様(食洗機付き) ■前面道路は南側6m公道 ■屋上ルーフバルコニー ■玄関シューズボックスの他、土間収納有り ■1坪タイプのユニットバスは浴室暖房乾燥機付き

    • 中古一戸建住宅

    埼玉県所沢市花園1丁目の中古一戸建て

    4,900万円

    • 西武新宿線「新所沢」駅 徒歩13分
    • 埼玉県所沢市花園1丁目
    間取り
    4SLDK
    建物面積
    141.60㎡
    土地面積
    215.37㎡
    築年月
    2012年07月
    構造
    木造
    階建
    2階建
    • 駅徒歩5分以内
    • 角地
    • 南道路
    • 駐車スペース有
    • 築後5年以内
    • 空家・空室
    • 公道に面する

    • 中古一戸建住宅

    埼玉県川口市南鳩ヶ谷4丁目の中古一戸建て

    6,380万円

    • 埼玉高速線「南鳩ヶ谷」駅 徒歩4分
    • 埼玉県川口市南鳩ヶ谷4丁目
    間取り
    2SLDK
    建物面積
    96.83㎡
    土地面積
    109.13㎡
    築年月
    2016年11月
    構造
    木造
    階建
    2階建
    • 駅徒歩5分以内
    • 角地
    • 南道路
    • 駐車スペース有
    • 築後5年以内
    • 空家・空室
    • 公道に面する

    • 中古一戸建住宅

    埼玉県川越市大字寺尾の中古一戸建て

    3,480万円

    • 東武東上線「新河岸」駅 徒歩11分
    • 埼玉県川越市大字寺尾
    間取り
    5SLDK
    建物面積
    119.24㎡
    土地面積
    165.00㎡
    築年月
    1981年08月
    構造
    RC
    階建
    2階建
    • 駅徒歩5分以内
    • 角地
    • 南道路
    • 駐車スペース有
    • 築後5年以内
    • 空家・空室
    • 公道に面する

    • 中古一戸建住宅

    埼玉県川口市大字源左衛門新田の中古一戸建て

    1,680万円

    • 武蔵野線「東川口」駅 徒歩29分
    • 埼玉県川口市大字源左衛門新田
    間取り
    4LDK
    建物面積
    95.58㎡
    土地面積
    102.06㎡
    築年月
    1987年07月
    構造
    木造
    階建
    3階建
    • 駅徒歩5分以内
    • 角地
    • 南道路
    • 駐車スペース有
    • 築後5年以内
    • 空家・空室
    • 公道に面する

    • 中古一戸建住宅

    埼玉県川口市大字神戸の中古一戸建て

    NO PHOTO

    3,300万円

    • 埼玉高速線「新井宿」駅 徒歩23分
    • 埼玉県川口市大字神戸
    間取り
    4LDK
    建物面積
    109.71㎡
    土地面積
    171.33㎡
    築年月
    2015年07月
    構造
    木造
    階建
    2階建
    • 駅徒歩5分以内
    • 角地
    • 南道路
    • 駐車スペース有
    • 築後5年以内
    • 空家・空室
    • 公道に面する

    • 中古一戸建住宅

    埼玉県所沢市松葉町の中古一戸建て

    5,980万円

    • 西武新宿線「新所沢」駅 徒歩6分
    • 埼玉県所沢市松葉町
    間取り
    4SLDK
    建物面積
    136.63㎡
    土地面積
    160.33㎡
    築年月
    2005年09月
    構造
    木造
    階建
    2階建
    • 駅徒歩5分以内
    • 角地
    • 南道路
    • 駐車スペース有
    • 築後5年以内
    • 空家・空室
    • 公道に面する

    • 中古一戸建住宅

    埼玉県三郷市中央3丁目の中古一戸建て

    5,100万円

    価格更新しました!

    • つくばEX「三郷中央」駅 徒歩5分
    • 埼玉県三郷市中央3丁目
    間取り
    3LDK
    建物面積
    100.07㎡
    土地面積
    100.08㎡
    築年月
    2006年03月
    構造
    軽量鉄骨
    階建
    2階建
    • 駅徒歩5分以内
    • 角地
    • 南道路
    • 駐車スペース有
    • 築後5年以内
    • 空家・空室
    • 公道に面する

    • 中古一戸建住宅

    埼玉県新座市畑中2丁目の中古一戸建て

    2,400万円

    • 東武東上線「朝霞台」駅 バス16分「畑中二丁目」バス停 徒歩6分
    • 埼玉県新座市畑中2丁目
    間取り
    4LDK
    建物面積
    80.96㎡
    土地面積
    101.24㎡
    築年月
    1997年07月
    構造
    木造
    階建
    2階建
    • 駅徒歩5分以内
    • 角地
    • 南道路
    • 駐車スペース有
    • 築後5年以内
    • 空家・空室
    • 公道に面する

    • 中古一戸建住宅

    埼玉県草加市原町3丁目の中古一戸建て

    4,500万円

    • 伊勢崎線「獨協大学前」駅 バス14分「原町三丁目」バス停 徒歩4分
    • 埼玉県草加市原町3丁目
    間取り
    5LDK
    建物面積
    125.04㎡
    土地面積
    203.74㎡
    築年月
    2020年10月
    構造
    木造
    階建
    2階建
    • 駅徒歩5分以内
    • 角地
    • 南道路
    • 駐車スペース有
    • 築後5年以内
    • 空家・空室
    • 公道に面する

    • 中古一戸建住宅

    埼玉県草加市谷塚町の中古一戸建て

    3,499万円

    • 伊勢崎線「草加」駅 徒歩18分
    • 埼玉県草加市谷塚町
    間取り
    3LDK
    建物面積
    99.36㎡
    土地面積
    109.46㎡
    築年月
    1998年11月
    構造
    その他
    階建
    2階建
    • 駅徒歩5分以内
    • 角地
    • 南道路
    • 駐車スペース有
    • 築後5年以内
    • 空家・空室
    • 公道に面する

    • 中古一戸建住宅

    埼玉県川口市東川口6丁目の中古一戸建て

    6,480万円

    価格更新しました!

    • 武蔵野線「東川口」駅 徒歩10分
    • 埼玉県川口市東川口6丁目
    間取り
    4LDK
    建物面積
    144.91㎡
    土地面積
    139.28㎡
    築年月
    1978年10月
    構造
    木造
    階建
    2階建
    • 駅徒歩5分以内
    • 角地
    • 南道路
    • 駐車スペース有
    • 築後5年以内
    • 空家・空室
    • 公道に面する

    • 中古一戸建住宅

    埼玉県和光市中央2丁目の中古一戸建て

    3,980万円

    • 有楽町線「地下鉄成増」駅 徒歩17分
    • 埼玉県和光市中央2丁目
    間取り
    3SLDK
    建物面積
    88.60㎡
    土地面積
    52.74㎡
    築年月
    2010年01月
    構造
    木造
    階建
    3階建
    • 駅徒歩5分以内
    • 角地
    • 南道路
    • 駐車スペース有
    • 築後5年以内
    • 空家・空室
    • 公道に面する

    • 中古一戸建住宅

    埼玉県川口市大字安行吉岡の中古一戸建て

    3,700万円

    • 埼玉高速線「新井宿」駅 徒歩20分
    • 埼玉県川口市大字安行吉岡
    間取り
    4LDK
    建物面積
    94.40㎡
    土地面積
    101.37㎡
    築年月
    2024年06月
    構造
    木造
    階建
    2階建
    • 駅徒歩5分以内
    • 角地
    • 南道路
    • 駐車スペース有
    • 築後5年以内
    • 空家・空室
    • 公道に面する

    • 中古一戸建住宅

    埼玉県和光市諏訪の中古一戸建て

    4,080万円

    • 有楽町線「地下鉄成増」駅 徒歩15分
    • 埼玉県和光市諏訪
    間取り
    2SLDK
    建物面積
    77.42㎡
    土地面積
    51.26㎡
    築年月
    2009年05月
    構造
    木造
    階建
    3階建
    • 駅徒歩5分以内
    • 角地
    • 南道路
    • 駐車スペース有
    • 築後5年以内
    • 空家・空室
    • 公道に面する

    ■2026年1月 フルリフォーム完成予定(全室クロス・フローリング貼替/システムキッチン・ユニットバス・トイレ新規交換など)■南向きのため日当たり良好です。 ■全室に収納がございます。

    • 中古一戸建住宅

    埼玉県所沢市小手指南2丁目の中古一戸建て

    3,980万円

    • 西武池袋線「小手指」駅 徒歩19分
    • 埼玉県所沢市小手指南2丁目
    間取り
    3SLDK
    建物面積
    130.83㎡
    土地面積
    248.08㎡
    築年月
    2010年03月
    構造
    木造
    階建
    2階建
    • 駅徒歩5分以内
    • 角地
    • 南道路
    • 駐車スペース有
    • 築後5年以内
    • 空家・空室
    • 公道に面する

    • 中古一戸建住宅

    埼玉県川越市藤木町の中古一戸建て

    2,780万円

    • 川越線「南古谷」駅 徒歩20分
    • 埼玉県川越市藤木町
    間取り
    3LDK
    建物面積
    98.87㎡
    土地面積
    140.12㎡
    築年月
    2001年06月
    構造
    木造
    階建
    2階建
    • 駅徒歩5分以内
    • 角地
    • 南道路
    • 駐車スペース有
    • 築後5年以内
    • 空家・空室
    • 公道に面する

    • 中古一戸建住宅

    埼玉県朝霞市青葉台1丁目の中古一戸建て

    NO PHOTO

    19,000万円

    • 東武東上線「朝霞」駅 徒歩7分
    • 埼玉県朝霞市青葉台1丁目
    間取り
    3SLDK
    建物面積
    130.42㎡
    土地面積
    258.56㎡
    築年月
    2008年10月
    構造
    木造
    階建
    2階建
    • 駅徒歩5分以内
    • 角地
    • 南道路
    • 駐車スペース有
    • 築後5年以内
    • 空家・空室
    • 公道に面する

    • 中古一戸建住宅

    埼玉県所沢市大字牛沼の中古一戸建て

    2,810万円

    • 西武池袋線「所沢」駅 バス20分「松井」バス停 徒歩10分
    • 埼玉県所沢市大字牛沼
    間取り
    4SLDK
    建物面積
    109.06㎡
    土地面積
    224.11㎡
    築年月
    1993年12月
    構造
    木造
    階建
    2階建
    • 駅徒歩5分以内
    • 角地
    • 南道路
    • 駐車スペース有
    • 築後5年以内
    • 空家・空室
    • 公道に面する

    • 中古一戸建住宅

    埼玉県川口市戸塚5丁目の中古一戸建て

    3,480万円

    • 埼玉高速線「戸塚安行」駅 徒歩13分
    • 埼玉県川口市戸塚5丁目
    間取り
    4LDK
    建物面積
    100.23㎡
    土地面積
    118.24㎡
    築年月
    2016年08月
    構造
    木造
    階建
    2階建
    • 駅徒歩5分以内
    • 角地
    • 南道路
    • 駐車スペース有
    • 築後5年以内
    • 空家・空室
    • 公道に面する

    ■南向きにつき陽当たり良好 ■前面道路は22m公道■公園が徒歩5分圏内にあり小さいお子様のいるご家庭も安心♪■スーパーが徒歩5分圏内にあり買い物便利♪■対面式カウンターキッチンで家族と会話を楽しみながら料理が出来ます♪■各居室に収納があり、大切なものを手元で保管できます●川口市立戸塚南小学校…約650m ●川口市立戸塚西中学校…約1500m ●中台第2公園…約344m ●コモディイイダ東川口店…約365m

    • 中古一戸建住宅

    埼玉県志木市幸町4丁目の中古一戸建て

    1,980万円

    • 東武東上線「柳瀬川」駅 徒歩14分
    • 埼玉県志木市幸町4丁目
    間取り
    3DK
    建物面積
    71.41㎡
    土地面積
    50.07㎡
    築年月
    2004年01月
    構造
    木造
    階建
    3階建
    • 駅徒歩5分以内
    • 角地
    • 南道路
    • 駐車スペース有
    • 築後5年以内
    • 空家・空室
    • 公道に面する

    ■旧(株)アキュラホームの注文住宅 ■室内丁寧にお使いです ■洗面所・トイレ各2箇所設置 ■周辺には商業施設が多数あり、お買い物に便利です!

    • 中古一戸建住宅

    埼玉県川口市北原台2丁目の中古一戸建て

    3,580万円

    • 武蔵野線「東川口」駅 徒歩20分
    • 埼玉県川口市北原台2丁目
    間取り
    4LDK
    建物面積
    99.57㎡
    土地面積
    88.33㎡
    築年月
    2015年02月
    構造
    木造
    階建
    2階建
    • 駅徒歩5分以内
    • 角地
    • 南道路
    • 駐車スペース有
    • 築後5年以内
    • 空家・空室
    • 公道に面する

    • 中古一戸建住宅

    埼玉県川口市北園町の中古一戸建て

    3,300万円

    • 武蔵野線「東浦和」駅 徒歩20分
    • 埼玉県川口市北園町
    間取り
    3LDK
    建物面積
    85.70㎡
    土地面積
    104.47㎡
    築年月
    2013年04月
    構造
    木造
    階建
    2階建
    • 駅徒歩5分以内
    • 角地
    • 南道路
    • 駐車スペース有
    • 築後5年以内
    • 空家・空室
    • 公道に面する

    • 中古一戸建住宅

    埼玉県川口市飯塚3丁目の中古一戸建て

    • パノラマあり

    4,590万円

    • 京浜東北線「川口」駅 徒歩11分
    • 埼玉県川口市飯塚3丁目
    間取り
    3LDK
    建物面積
    81.85㎡
    土地面積
    50.93㎡
    築年月
    2017年07月
    構造
    木造
    階建
    3階建
    • 駅徒歩5分以内
    • 角地
    • 南道路
    • 駐車スペース有
    • 築後5年以内
    • 空家・空室
    • 公道に面する

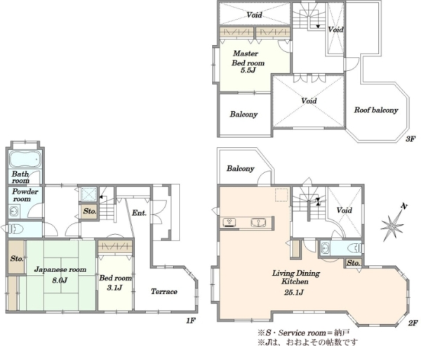
    ・LDK部分広々16帖超 ・平成29年7月築、4棟分譲の1邸 ・前面道路は5.7mの公道に面し、ゆとりのあるランドスケープ ・周辺には公園等多数有り、環境良好 ・各居室7帖以上 〜仕様・構造・設備〜 ■カースペース有り(車種制限有り) ■浴室に窓有り   ■浴室換気乾燥器 ■浴室1616タイプ ■カウンターキッチン ■屋根裏収納スペース2箇所有り ■洗面台3面鏡 ■バルコニー2箇所 ■テレビモニター付きインターフォン ■LD部分床暖房 etc.

    • 中古一戸建住宅

    埼玉県川口市青木4丁目の中古一戸建て

    4,080万円

    • 埼玉高速線「南鳩ヶ谷」駅 徒歩14分
    • 埼玉県川口市青木4丁目
    間取り
    3SLDK
    建物面積
    111.79㎡
    土地面積
    80.01㎡
    築年月
    2013年03月
    構造
    木造
    階建
    3階建
    • 駅徒歩5分以内
    • 角地
    • 南道路
    • 駐車スペース有
    • 築後5年以内
    • 空家・空室
    • 公道に面する

    ■2013年3月築■3LDK+S(納戸)3階建て■建物面積:111.79平米■ウォークインクローゼットあり■カウンターキッチン

    • 中古一戸建住宅

    埼玉県所沢市上新井3丁目の中古一戸建て

    3,300万円

    価格更新しました!

    • 西武池袋線「小手指」駅 徒歩15分
    • 埼玉県所沢市上新井3丁目
    間取り
    3LDK
    建物面積
    97.70㎡
    土地面積
    103.02㎡
    築年月
    2020年04月
    構造
    木造
    階建
    2階建
    • 駅徒歩5分以内
    • 角地
    • 南道路
    • 駐車スペース有
    • 築後5年以内
    • 空家・空室
    • 公道に面する

    • 中古一戸建住宅

    埼玉県川越市大字砂新田の中古一戸建て

    4,690万円

    • 東武東上線「新河岸」駅 徒歩11分
    • 埼玉県川越市大字砂新田
    間取り
    4SLDK
    建物面積
    105.32㎡
    土地面積
    126.43㎡
    築年月
    2019年03月
    構造
    木造
    階建
    2階建
    • 駅徒歩5分以内
    • 角地
    • 南道路
    • 駐車スペース有
    • 築後5年以内
    • 空家・空室
    • 公道に面する

    • 中古一戸建住宅

    埼玉県新座市栄4丁目の中古一戸建て

    2,980万円

    • 西武池袋線「大泉学園」駅 バス19分「都民農園」バス停 徒歩3分
    • 埼玉県新座市栄4丁目
    間取り
    3LDK
    建物面積
    85.31㎡
    土地面積
    100.15㎡
    築年月
    2000年10月
    構造
    木造
    階建
    2階建
    • 駅徒歩5分以内
    • 角地
    • 南道路
    • 駐車スペース有
    • 築後5年以内
    • 空家・空室
    • 公道に面する

    • 中古一戸建住宅

    埼玉県川口市芝5丁目の中古一戸建て

    2,480万円

    • 京浜東北線「蕨」駅 徒歩8分
    • 埼玉県川口市芝5丁目
    間取り
    1K
    建物面積
    38.70㎡
    土地面積
    30.92㎡
    築年月
    2018年04月
    構造
    木造
    階建
    2階建
    • 駅徒歩5分以内
    • 角地
    • 南道路
    • 駐車スペース有
    • 築後5年以内
    • 空家・空室
    • 公道に面する

    • 中古一戸建住宅

    埼玉県所沢市大字下安松の中古一戸建て

    2,580万円

    • 西武池袋線「秋津」駅 徒歩14分
    • 埼玉県所沢市大字下安松
    間取り
    4LDK
    建物面積
    92.95㎡
    土地面積
    122.95㎡
    築年月
    2006年10月
    構造
    木造
    階建
    2階建
    • 駅徒歩5分以内
    • 角地
    • 南道路
    • 駐車スペース有
    • 築後5年以内
    • 空家・空室
    • 公道に面する

    • 中古一戸建住宅

    埼玉県所沢市北中3丁目の中古一戸建て

    2,800万円

    • 西武新宿線「新所沢」駅 徒歩18分
    • 埼玉県所沢市北中3丁目
    間取り
    4SLDK
    建物面積
    120.06㎡
    土地面積
    122.30㎡
    築年月
    1996年11月
    構造
    木造
    階建
    2階建
    • 駅徒歩5分以内
    • 角地
    • 南道路
    • 駐車スペース有
    • 築後5年以内
    • 空家・空室
    • 公道に面する

    • 中古一戸建住宅

    埼玉県新座市野火止3丁目の中古一戸建て

    3,180万円

    • 武蔵野線「新座」駅 バス6分「あたご橋」バス停 徒歩1分
    • 埼玉県新座市野火止3丁目
    間取り
    4LDK
    建物面積
    106.80㎡
    土地面積
    225.55㎡
    築年月
    1982年09月
    構造
    軽量鉄骨
    階建
    2階建
    • 駅徒歩5分以内
    • 角地
    • 南道路
    • 駐車スペース有
    • 築後5年以内
    • 空家・空室
    • 公道に面する

    ■西武バス「あたご橋」バス停 徒歩1分 ■角地 ■駐車スペース3台分(車種制限あり)■軽量鉄骨造2階建 ■内覧のご希望やご質問はお気軽にお問合せください!

    • 中古一戸建住宅

    埼玉県朝霞市根岸台8丁目の中古一戸建て

    2,590万円

    • 東武東上線「朝霞」駅 徒歩20分
    • 埼玉県朝霞市根岸台8丁目
    間取り
    4LDK
    建物面積
    119.24㎡
    土地面積
    94.08㎡
    築年月
    1994年06月
    構造
    木造
    階建
    2階建
    • 駅徒歩5分以内
    • 角地
    • 南道路
    • 駐車スペース有
    • 築後5年以内
    • 空家・空室
    • 公道に面する

    ■勾配天井の開放感あふれるリビングダイニング ■小さなお子様やご高齢の方にも安心なIHコンロ■天井高を活かしたロフト付きで、限られた空間を広く使える設計 ■駐車スペース1台分あり(車種によります)

    • 中古一戸建住宅

    埼玉県川口市江戸袋1丁目の中古一戸建て

    4,080万円

    • 日暮里舎人「見沼代親水公園」駅 徒歩19分
    • 埼玉県川口市江戸袋1丁目
    間取り
    4LDK
    建物面積
    113.23㎡
    土地面積
    111.24㎡
    築年月
    2019年09月
    構造
    木造
    階建
    2階建
    • 駅徒歩5分以内
    • 角地
    • 南道路
    • 駐車スペース有
    • 築後5年以内
    • 空家・空室
    • 公道に面する

    • 中古一戸建住宅

    埼玉県上尾市大字上野の中古一戸建て

    1,780万円

    • 高崎線「上尾」駅 バス20分「平方上野」バス停 徒歩2分
    • 埼玉県上尾市大字上野
    間取り
    4LDK
    建物面積
    93.56㎡
    土地面積
    131.15㎡
    築年月
    2020年06月
    構造
    木造
    階建
    2階建
    • 駅徒歩5分以内
    • 角地
    • 南道路
    • 駐車スペース有
    • 築後5年以内
    • 空家・空室
    • 公道に面する

    • 中古一戸建住宅

    埼玉県朝霞市宮戸3丁目の中古一戸建て

    3,680万円

    • 武蔵野線「北朝霞」駅 徒歩23分
    • 埼玉県朝霞市宮戸3丁目
    間取り
    4LDK
    建物面積
    105.50㎡
    土地面積
    142.71㎡
    築年月
    2014年02月
    構造
    軽量鉄骨
    階建
    2階建
    • 駅徒歩5分以内
    • 角地
    • 南道路
    • 駐車スペース有
    • 築後5年以内
    • 空家・空室
    • 公道に面する

    ◇南東向きのため日当たり良好です。◇前面道路6mで駐車もスムーズに行えます。◇駐車スペース2台あり(車種による)◇環境にやさしいオール電化住宅 ◇低層住居専用地域ならではの落ち着いた住環境

    • 中古一戸建住宅

    埼玉県草加市谷塚町の中古一戸建て

    3,480万円

    • 伊勢崎線「草加」駅 徒歩12分
    • 埼玉県草加市谷塚町
    間取り
    6DK
    建物面積
    153.17㎡
    土地面積
    99.17㎡
    築年月
    1991年07月
    構造
    RC
    階建
    3階建
    • 駅徒歩5分以内
    • 角地
    • 南道路
    • 駐車スペース有
    • 築後5年以内
    • 空家・空室
    • 公道に面する

    • 中古一戸建住宅

    埼玉県川口市江戸袋1丁目の中古一戸建て

    4,200万円

    • 日暮里舎人「見沼代親水公園」駅 徒歩23分
    • 埼玉県川口市江戸袋1丁目
    間取り
    2SLDK
    建物面積
    119.00㎡
    土地面積
    153.64㎡
    築年月
    2013年09月
    構造
    軽量鉄骨
    階建
    2階建
    • 駅徒歩5分以内
    • 角地
    • 南道路
    • 駐車スペース有
    • 築後5年以内
    • 空家・空室
    • 公道に面する

    • 中古一戸建住宅

    埼玉県上尾市大字上尾下の中古一戸建て

    2,380万円

    • 伊奈線「原市」駅 徒歩10分
    • 埼玉県上尾市大字上尾下
    間取り
    2SLDK
    建物面積
    78.66㎡
    土地面積
    74.59㎡
    築年月
    2019年08月
    構造
    木造
    階建
    2階建
    • 駅徒歩5分以内
    • 角地
    • 南道路
    • 駐車スペース有
    • 築後5年以内
    • 空家・空室
    • 公道に面する

    • 中古一戸建住宅

    埼玉県三郷市戸ケ崎の中古一戸建て

    4,480万円

    • つくばEX「八潮」駅 徒歩20分
    • 埼玉県三郷市戸ケ崎
    間取り
    2LDK
    建物面積
    104.34㎡
    土地面積
    289.55㎡
    築年月
    2004年07月
    構造
    木造
    階建
    2階建
    • 駅徒歩5分以内
    • 角地
    • 南道路
    • 駐車スペース有
    • 築後5年以内
    • 空家・空室
    • 公道に面する

    • 中古一戸建住宅

    埼玉県上尾市東町3丁目の中古一戸建て

    4,380万円

    • 高崎線「上尾」駅 徒歩24分
    • 埼玉県上尾市東町3丁目
    間取り
    1SLDK
    建物面積
    94.06㎡
    土地面積
    125.04㎡
    築年月
    2021年12月
    構造
    木造
    階建
    2階建
    • 駅徒歩5分以内
    • 角地
    • 南道路
    • 駐車スペース有
    • 築後5年以内
    • 空家・空室
    • 公道に面する

    • 中古一戸建住宅

    埼玉県上尾市栄町の中古一戸建て

    6,800万円

    • 高崎線「上尾」駅 徒歩27分
    • 埼玉県上尾市栄町
    間取り
    5SLDK
    建物面積
    176.79㎡
    土地面積
    422.50㎡
    築年月
    1990年03月
    構造
    木造
    階建
    2階建
    • 駅徒歩5分以内
    • 角地
    • 南道路
    • 駐車スペース有
    • 築後5年以内
    • 空家・空室
    • 公道に面する

    • 中古一戸建住宅

    埼玉県川口市東川口1丁目の中古一戸建て

    4,680万円

    • 埼玉高速線「東川口」駅 徒歩5分
    • 埼玉県川口市東川口1丁目
    間取り
    3LDK
    建物面積
    89.43㎡
    土地面積
    97.19㎡
    築年月
    2017年10月
    構造
    木造
    階建
    2階建
    • 駅徒歩5分以内
    • 角地
    • 南道路
    • 駐車スペース有
    • 築後5年以内
    • 空家・空室
    • 公道に面する

    • 中古一戸建住宅

    埼玉県新座市東北2丁目の中古一戸建て

    4,680万円

    価格更新しました!

    • 東武東上線「志木」駅 徒歩12分
    • 埼玉県新座市東北2丁目
    間取り
    5SLDK
    建物面積
    126.06㎡
    土地面積
    78.81㎡
    築年月
    2003年01月
    構造
    木造
    階建
    3階建
    • 駅徒歩5分以内
    • 角地
    • 南道路
    • 駐車スペース有
    • 築後5年以内
    • 空家・空室
    • 公道に面する

    ■志木駅徒歩12分!ゆとりの5LDK+サービスルーム(納戸)付き3階建て住宅 ■南西向きで陽当たり良好、明るく快適な住まいです。■浴室乾燥機付きで、雨の日のお洗濯も安心。■各居室に収納スペースを完備。

    • 中古一戸建住宅

    埼玉県和光市白子3丁目の中古一戸建て

    3,950万円

    • 有楽町線「地下鉄成増」駅 徒歩20分
    • 埼玉県和光市白子3丁目
    間取り
    2LDK
    建物面積
    91.91㎡
    土地面積
    126.26㎡
    築年月
    2004年06月
    構造
    木造
    階建
    2階建
    • 駅徒歩5分以内
    • 角地
    • 南道路
    • 駐車スペース有
    • 築後5年以内
    • 空家・空室
    • 公道に面する

    ■駐車スペース3台分有り(車種による) ■2駅3路線利用可能 都心にも軽快アクセス■2LDKから4LDKに間取り変更可能です。(別途工事費用がかかります。)■トイレ2箇所ございます。■全居室収納付き ■ダクトレス24時間換気システムを採用

    • 中古一戸建住宅

    埼玉県川越市川鶴3丁目の中古一戸建て

    5,980万円

    • 川越線「笠幡」駅 徒歩23分
    • 埼玉県川越市川鶴3丁目
    間取り
    4SLDK
    建物面積
    135.25㎡
    土地面積
    142.33㎡
    築年月
    2023年04月
    構造
    木造
    階建
    2階建
    • 駅徒歩5分以内
    • 角地
    • 南道路
    • 駐車スペース有
    • 築後5年以内
    • 空家・空室
    • 公道に面する

チェックした物件をまとめて

68

お気に入りに追加しました。

検索条件を保存しました。

この検索条件は、すでに保存されています。

検索条件の保存は10件までです。

お手数ですが、検索条件をご確認ください。

保存した条件を確認する

検索条件を保存します

マイページ会員の方

メールアドレス
パスワード

ログインして追加

マイページ会員ではない方

マイページ登録せずに検索条件を保存します。
マイページに登録いただくとスマートフォンや複数のPCで共有できます。

検索条件を追加