biz buy fav history ietanstyle mail mypage reform rent search sell tel house land mansion print point panorama save movie view door qanda useful office input lock label crown train add marker historyCheck catalogM catalogT catalogHG voice bus

<いい家探せる> ietan.jp(イエタン.jp)

大成有楽不動産販売

不動産の売買なら大成有楽不動産販売|ietan(イエタン)

Menu

トップ
マイページ
  1. 不動産の売買はietan(イエタン)
  2. 不動産の購入
  3. 中古一戸建て
  4. 東京都
  5. 大井町線の中古一戸建て一覧

大井町線の中古一戸建てを検索

大井町線の中古一戸建て購入・検索・販売はこちら。価格変更や新着物件などの情報も随時更新中!!価格、間取り、面積や立地・交通、住宅設備などの条件を指定した検索でご希望の物件を大井町線の中古一戸建てからお探しいただけます。大井町線の中古一戸建てなら大成有楽不動産販売のietan(イエタン)。

現在の検索条件

選択中の沿線
  • 私鉄(25)
  • └大井町線(25)
絞り込み条件の変更はこちら
価格
建物面積
土地面積
間取り
築年数
駅からの徒歩分
情報

検索条件の追加

立地・交通
土地の特徴
部屋
収納
キッチン
浴室・トイレ
設備
セキュリティ
駐車場
その他
建物の特徴
取引条件
建物構造

該当物件数18

こだわり条件

18

表示件数:
並び替え:

チェックした物件をまとめて

    • NEW
    • 中古一戸建住宅

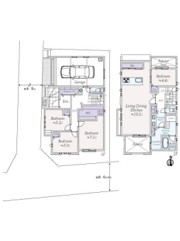
    東京都世田谷区奥沢8丁目の中古一戸建て

    9,500万円

    • 大井町線「九品仏」駅 徒歩5分
    • 東京都世田谷区奥沢8丁目
    間取り
    1SLDK
    建物面積
    72.13㎡
    土地面積
    44.70㎡
    築年月
    2019年11月
    構造
    木造
    階建
    3階建
    • 駅徒歩5分以内
    • 角地
    • 南道路
    • 駐車スペース有
    • 築後5年以内
    • 空家・空室
    • 公道に面する

    九品仏商店街沿い。1階は現在事務所として利用中です。

    • NEW
    • 中古一戸建住宅

    東京都目黒区平町2丁目の中古一戸建て

    22,980万円

    • 東横線「都立大学」駅 徒歩8分
    • 東京都目黒区平町2丁目
    間取り
    3SLDK
    建物面積
    143.35㎡
    土地面積
    101.92㎡
    築年月
    2013年04月
    構造
    木造
    階建
    3階建
    • 駅徒歩5分以内
    • 角地
    • 南道路
    • 駐車スペース有
    • 築後5年以内
    • 空家・空室
    • 公道に面する

    • 中古一戸建住宅

    東京都目黒区大岡山2丁目の中古一戸建て

    NO PHOTO
    NO PHOTO

    16,480万円

    • 大井町線「大岡山」駅 徒歩7分
    • 東京都目黒区大岡山2丁目
    間取り
    4SLDK
    建物面積
    132.31㎡
    土地面積
    123.42㎡
    築年月
    2003年04月
    構造
    木造
    階建
    2階建
    • 駅徒歩5分以内
    • 角地
    • 南道路
    • 駐車スペース有
    • 築後5年以内
    • 空家・空室
    • 公道に面する

    ◆3駅3路線利用可能・東急目黒線、東急大井町線「大岡山」駅徒歩7分・東急大井町線「緑が丘」駅徒歩11分・東急東横線「都立大学」駅徒歩17分◆2003年4月築◆第1種低層住居専用地域内の閑静な住宅街◆土地面積:123.42㎡(私道部分除く)◆建物面積:132.31㎡◆カースペース有(※車種制限有)◆4LDK+S(納戸)、小屋収納スペース付◆全居室6帖以上◆ご家族との会話を愉しむ事が可能なカウンターキッチン・3口ガスコンロ

    • 中古一戸建住宅

    東京都世田谷区奥沢4丁目の中古一戸建て

    39,000万円

    • 目黒線「奥沢」駅 徒歩6分
    • 東京都世田谷区奥沢4丁目
    間取り
    2SLDK
    建物面積
    223.12㎡
    土地面積
    328.64㎡
    築年月
    2003年08月
    構造
    木造
    階建
    2階建
    • 駅徒歩5分以内
    • 角地
    • 南道路
    • 駐車スペース有
    • 築後5年以内
    • 空家・空室
    • 公道に面する

    • 中古一戸建住宅

    東京都世田谷区深沢1丁目の中古一戸建て

    23,800万円

    • 東横線「自由が丘」駅 徒歩17分
    • 東京都世田谷区深沢1丁目
    間取り
    4LDK
    建物面積
    140.97㎡
    土地面積
    116.19㎡
    築年月
    2024年12月
    構造
    木造
    階建
    2階建
    • 駅徒歩5分以内
    • 角地
    • 南道路
    • 駐車スペース有
    • 築後5年以内
    • 空家・空室
    • 公道に面する

    • 中古一戸建住宅

    東京都品川区豊町1丁目の中古一戸建て

    8,000万円

    • 都営浅草線「戸越」駅 徒歩9分
    • 東京都品川区豊町1丁目
    間取り
    3DK
    建物面積
    89.76㎡
    土地面積
    53.56㎡
    築年月
    1993年10月
    構造
    木造
    階建
    2階(地下1階)建
    • 駅徒歩5分以内
    • 角地
    • 南道路
    • 駐車スペース有
    • 築後5年以内
    • 空家・空室
    • 公道に面する

    • 中古一戸建住宅

    東京都世田谷区等々力8丁目の中古一戸建て

    12,480万円

    • 大井町線「等々力」駅 徒歩11分
    • 東京都世田谷区等々力8丁目
    間取り
    3SLDK
    建物面積
    110.53㎡
    土地面積
    82.65㎡
    築年月
    2013年02月
    構造
    木造
    階建
    3階建
    • 駅徒歩5分以内
    • 角地
    • 南道路
    • 駐車スペース有
    • 築後5年以内
    • 空家・空室
    • 公道に面する

    • 中古一戸建住宅

    東京都目黒区緑が丘2丁目の中古一戸建て

    13,800万円

    • 東横線「自由が丘」駅 徒歩8分
    • 東京都目黒区緑が丘2丁目
    間取り
    2SLDK
    建物面積
    78.33㎡
    土地面積
    52.93㎡
    築年月
    2024年10月
    構造
    木造
    階建
    3階建
    • 駅徒歩5分以内
    • 角地
    • 南道路
    • 駐車スペース有
    • 築後5年以内
    • 空家・空室
    • 公道に面する

    • 中古一戸建住宅

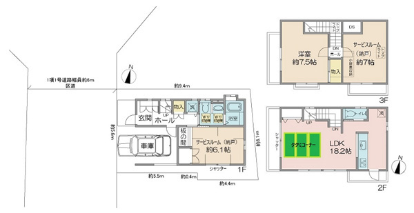
    東京都世田谷区瀬田2丁目の中古一戸建て

    6,980万円

    • 田園都市線「用賀」駅 徒歩12分
    • 東京都世田谷区瀬田2丁目
    間取り
    2SLDK
    建物面積
    70.51㎡
    土地面積
    40.87㎡
    築年月
    2004年04月
    構造
    鉄骨造
    階建
    3階建
    • 駅徒歩5分以内
    • 角地
    • 南道路
    • 駐車スペース有
    • 築後5年以内
    • 空家・空室
    • 公道に面する

    ■東急田園都市線「用賀」駅徒歩12分、「二子玉川」駅徒歩15分、東急大井町線「上野毛」駅徒歩12分■世田谷区瀬田エリアのファミリー向け住宅■瀬田小学校、瀬田中学校まで徒歩5分以内■鉄骨造3階建 建物面積:70.51㎡■ルーフバルコニー付■カースペース有り(車種制限あり)■リビングに床暖房あり

    • 中古一戸建住宅

    東京都世田谷区岡本1丁目の中古一戸建て

    6,980万円

    • 田園都市線「用賀」駅 徒歩21分
    • 東京都世田谷区岡本1丁目
    間取り
    2SLDK
    建物面積
    77.76㎡
    土地面積
    100.00㎡
    築年月
    2007年10月
    構造
    木造
    階建
    2階建
    • 駅徒歩5分以内
    • 角地
    • 南道路
    • 駐車スペース有
    • 築後5年以内
    • 空家・空室
    • 公道に面する

    • 中古一戸建住宅

    東京都大田区南千束1丁目の中古一戸建て

    15,800万円

    • 大井町線「北千束」駅 徒歩4分
    • 東京都大田区南千束1丁目
    間取り
    3SLDK
    建物面積
    122.15㎡
    土地面積
    126.38㎡
    築年月
    2014年03月
    構造
    木造
    階建
    3階建
    • 駅徒歩5分以内
    • 角地
    • 南道路
    • 駐車スペース有
    • 築後5年以内
    • 空家・空室
    • 公道に面する

    • 中古一戸建住宅

    東京都目黒区平町2丁目の中古一戸建て

    55,000万円

    • 東横線「都立大学」駅 徒歩8分
    • 東京都目黒区平町2丁目
    間取り
    3SLDK
    建物面積
    144.65㎡
    土地面積
    519.57㎡
    築年月
    2011年11月
    構造
    RC
    階建
    2階建
    • 駅徒歩5分以内
    • 角地
    • 南道路
    • 駐車スペース有
    • 築後5年以内
    • 空家・空室
    • 公道に面する

    • 中古一戸建住宅

    神奈川県川崎市高津区二子1丁目の中古一戸建て

    5,980万円

    • 田園都市線「二子新地」駅 徒歩5分
    • 神奈川県川崎市高津区二子1丁目
    間取り
    1SLDK
    建物面積
    73.63㎡
    土地面積
    42.30㎡
    築年月
    2017年09月
    構造
    木造
    階建
    3階建
    • 駅徒歩5分以内
    • 角地
    • 南道路
    • 駐車スペース有
    • 築後5年以内
    • 空家・空室
    • 公道に面する

    • 中古一戸建住宅

    東京都世田谷区岡本2丁目の中古一戸建て

    14,900万円

    • 大井町線「二子玉川」駅 徒歩15分
    • 東京都世田谷区岡本2丁目
    間取り
    4LDK
    建物面積
    145.81㎡
    土地面積
    175.04㎡
    築年月
    2000年12月
    構造
    木造
    階建
    2階建
    • 駅徒歩5分以内
    • 角地
    • 南道路
    • 駐車スペース有
    • 築後5年以内
    • 空家・空室
    • 公道に面する

    • 中古一戸建住宅

    東京都世田谷区岡本2丁目の中古一戸建て

    14,900万円

    • 大井町線「二子玉川」駅 徒歩15分
    • 東京都世田谷区岡本2丁目
    間取り
    4LDK
    建物面積
    145.81㎡
    土地面積
    175.04㎡
    築年月
    2000年12月
    構造
    木造
    階建
    2階建
    • 駅徒歩5分以内
    • 角地
    • 南道路
    • 駐車スペース有
    • 築後5年以内
    • 空家・空室
    • 公道に面する

    • 中古一戸建住宅

    東京都大田区田園調布5丁目の中古一戸建て

    19,800万円

    • 東横線「田園調布」駅 徒歩14分
    • 東京都大田区田園調布5丁目
    間取り
    3SLDK
    建物面積
    192.40㎡
    土地面積
    183.21㎡
    築年月
    2003年10月
    構造
    木造
    階建
    2階(地下1階)建
    • 駅徒歩5分以内
    • 角地
    • 南道路
    • 駐車スペース有
    • 築後5年以内
    • 空家・空室
    • 公道に面する

    • 中古一戸建住宅

    東京都世田谷区深沢5丁目の中古一戸建て

    21,500万円

    • 田園都市線「桜新町」駅 徒歩21分
    • 東京都世田谷区深沢5丁目
    間取り
    3LDK
    建物面積
    130.21㎡
    土地面積
    234.52㎡
    築年月
    2010年08月
    構造
    木造
    階建
    2階建
    • 駅徒歩5分以内
    • 角地
    • 南道路
    • 駐車スペース有
    • 築後5年以内
    • 空家・空室
    • 公道に面する

    ■注文住宅 ミサワホーム設計施工 ■大型のアイランドキッチン ■LDKには床暖房設置済み ■各居室収納スペースあり ■各階トイレあり ■ルーフバルコニー2か所あり ■駐車スペース2〜3台あり(車種制限あり) ■周辺にはスーパーやコンビニが徒歩5分圏内にございます

    • 中古一戸建住宅

    東京都世田谷区上野毛3丁目の中古一戸建て

    42,000万円

    • 大井町線「上野毛」駅 徒歩4分
    • 東京都世田谷区上野毛3丁目
    間取り
    6LDK
    建物面積
    211.94㎡
    土地面積
    258.10㎡
    築年月
    1984年03月
    構造
    木造
    階建
    2階建
    • 駅徒歩5分以内
    • 角地
    • 南道路
    • 駐車スペース有
    • 築後5年以内
    • 空家・空室
    • 公道に面する

    ◆東急大井町線 上野毛駅 徒歩4分東急田園都市線 二子玉川駅 徒歩12分◆敷地78坪超(公簿258.10㎡)緑豊かな住環境を享受する、大型戸建南西側 公道(幅員6.3m)に面す整形地◆建物 公簿200㎡超 6LDK、陽当り眺望良好シャッター付きガレージ ※駐車場スペース並列2台分(車種による)◆第一種低層住居専用地域の良好な住環境◆吹抜けのある豪華なエントランスホールから広がる開放感のある室内◆令和3年12月 屋根、外壁の修繕を実施

チェックした物件をまとめて

18

こちらの物件もおすすめです

お気に入りに追加しました。

検索条件を保存しました。

この検索条件は、すでに保存されています。

検索条件の保存は10件までです。

お手数ですが、検索条件をご確認ください。

保存した条件を確認する

検索条件を保存します

マイページ会員の方

メールアドレス
パスワード

ログインして追加

マイページ会員ではない方

マイページ登録せずに検索条件を保存します。
マイページに登録いただくとスマートフォンや複数のPCで共有できます。

検索条件を追加