biz buy fav history ietanstyle mail mypage reform rent search sell tel house land mansion print point panorama save movie view door qanda useful office input lock label crown train add marker historyCheck catalogM catalogT catalogHG voice bus

<いい家探せる> ietan.jp(イエタン.jp)

大成有楽不動産販売

不動産の売買なら大成有楽不動産販売|ietan(イエタン)

Menu

トップ
マイページ
  1. 不動産の売買はietan(イエタン)
  2. リフォーム
  3. マンションリフォーム事例集
  4. 事例集85
  • TOP
  • 信頼のサービス
  • リフォームの流れ
  • 事例集
  • 見積依頼・無料相談

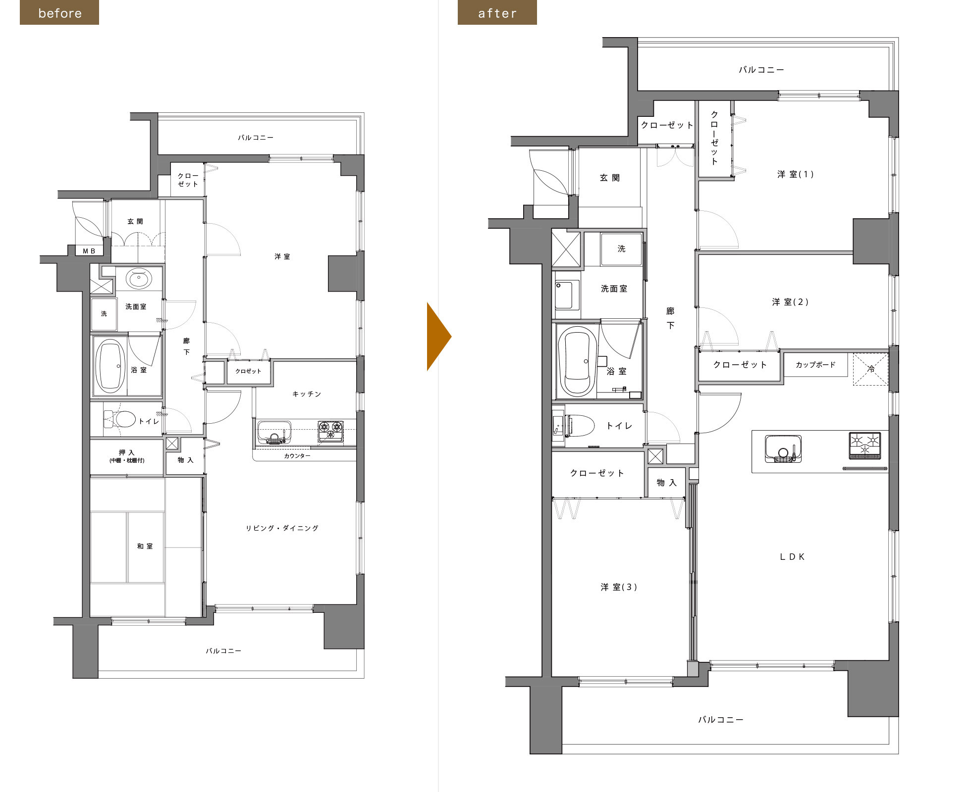
CASE STUDIES

既存の素材を活かしたリノベーション。エコカラットやアクセントクロスづかいで遊び心が出ています。

  • 所在地 / 東京都国立市
  • 築年月 / 1999年2月
  • 専有面積 / 68.83m²
  • 間取り / 3LDK
  • キッチン
  • バス・浴室
  • トイレ
  • 洗面所
  • リビング
  • ダイニング
  • 寝室
  • 洋室
  • 廊下
  • 玄関
  • ドア
  • 収納
  • 間取り変更

befor

    • before

    • after

    • before

    • after

    • before

    • after

    • before

    • after

一覧に戻る

お問い合わせ・見積もりのご相談お問い合わせ・見積もりのご相談

お気に入りに追加しました。

検索条件を保存しました。

この検索条件は、すでに保存されています。

検索条件の保存は10件までです。

お手数ですが、検索条件をご確認ください。

保存した条件を確認する

検索条件を保存します

マイページ会員の方

メールアドレス
パスワード

ログインして追加

マイページ会員ではない方

マイページ登録せずに検索条件を保存します。
マイページに登録いただくとスマートフォンや複数のPCで共有できます。

検索条件を追加