新松戸センター
営業時間:10:00~18:00 / 定休日:毎週火曜日・水曜日
物件番号:AAA12700
営業時間:10:00~18:00 / 定休日:毎週火曜日・水曜日
物件番号:AAA12700
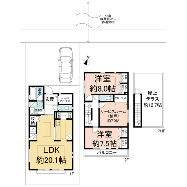
■2024年6月完成、築後未入居物件 ■2LDK+S+屋上テラス(約12.7帖)+カースペース2台分 ■土地面積:120㎡(約36.3坪)建物面積:105.99㎡(約32.06坪)■充実した設備・仕様 ■リビングイン階段採用 ■全居室は7帖以上の広さ ■1階LD・Kおよび2階約8帖洋室にガス床暖房完備 ■ミストサウナ・TVが設置された寛ぎの浴室 ■玄関スペースに大容量のシューズクローゼット ■千代田・常磐緩行線「北松戸」駅徒歩13分 京成松戸線「上本郷」駅徒歩10分
もっと見る
複数路線利用可
公園徒歩5分以内
スーパー徒歩5分以内
駅徒歩10分以内
公道に面する
前面道路幅員6m以上
土地・建物面積100㎡以上
屋上付き
浴室乾燥機能
ミストサウナ
追い焚き
駐車場2台以上
駐車スペース有
空家・空室
築後5年以内
即入居可
在来構造

岡田 敬太
※本ページの記載内容は、情報更新日現在の情報です。また、記載内容と現状が異なる場合には現状を優先します。取引態様が仲介の場合には物件価格の他に仲介手数料及び消費税相当額を申しうけます。
担当営業センター
270-0034松戸市新松戸1-374-1 政和ビル 2F
営業時間:10:00~18:00 / 定休日:毎週火曜日・水曜日
千葉県松戸市上本郷の中古一戸建ての中古一戸建住宅情報はこちら。不動産の売却や査定、購入・検索は大成有楽不動産販売のietan(イエタン)。首都圏の中古マンション、新築一戸建て、投資用不動産、土地など幅広くご提案いたします。
お気に入りに追加しました。
検索条件を保存しました。
この検索条件は、すでに保存されています。
検索条件を保存します
~おすすめポイント~
■2024年6月完成
■リビングイン階段採用
■全居室スペースは全て7帖以上の広さ
■1階LD・Kおよび2階約8.0帖洋室にガス床暖房完備
■ミストサウナ、TVが設置された寛ぎの浴室
■玄関スペースに大容量のシューズクローゼット
information
●寒風台小学校…約820m
●第六中学校…約1300m
●ヤオコー松戸上本郷店…約180m
●新堀公園…約330m
●ファミリーマート松戸新田西店…約580m