biz buy fav history ietanstyle mail mypage reform rent search sell tel house land mansion print point panorama save movie view door qanda useful office input lock label crown train add marker historyCheck catalogM catalogT catalogHG voice bus

<いい家探せる> ietan.jp(イエタン.jp)

大成有楽不動産販売

不動産の売買なら大成有楽不動産販売|ietan(イエタン)

Menu

トップ
マイページ
  1. 不動産の売買はietan(イエタン)
  2. 不動産の購入
  3. 中古一戸建て
  4. 千葉県
  5. 千葉県市部
  6. 船橋市
  7. 千葉県船橋市藤原5丁目の中古一戸建て
  • 中古一戸建住宅

千葉県船橋市藤原5丁目の中古一戸建て

5,180万円

ローンシミュレーション

物件価格より月々のお支払額を概算で算出いたします。

借入金額
(物件価格)
5,180 万円
自己資金
(頭金)
万円
支払期間
金利
%
ボーナス時
支払額
万円

月々の支払額

0

所在地
千葉県船橋市藤原5丁目
交通
東武野田線「馬込沢」駅 徒歩17分
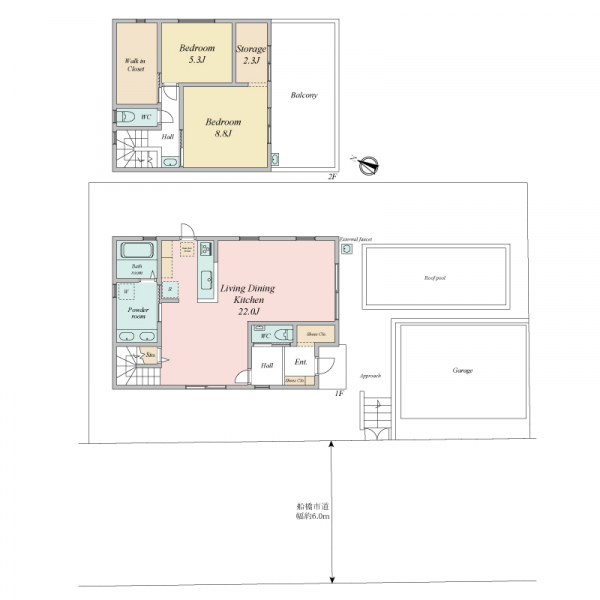
間取り
2LDK
建物面積
96.88㎡
土地面積
198.36㎡
築年月
2022年03月
構造
木造
階建
2階建
  • 令和4年築!カーポート有
  • 敷地内に専用プール完備!
  • 約22帖のLDK!床暖房完備してます
  • 南向きの採光になります

もっと見る

設備・物件のこだわりポイント

土地の特徴
  • 公道に面する

  • 前面道路幅員6m以上

部屋
  • LDK15帖以上

  • 8帖以上の居室

駐車場
  • 駐車スペース有

建物の特徴
  • 築後5年以内

物件概要

所在地物件情報の見方
千葉県船橋市藤原5丁目
交通物件情報の見方
東武野田線「馬込沢」駅 徒歩17分
土地面積物件情報の見方
198.36㎡(60坪) 公簿
私道面積物件情報の見方
-
建物面積物件情報の見方
96.88㎡(29.3坪)
構造・階建物件情報の見方
木造 2階建
接面道路物件情報の見方
公道 南西6.0m 接道幅:17.9m
間取り物件情報の見方
2LDK
LDK 22.0帖 (1) 洋室 8.0帖 (1) 洋室 5.3帖 (1) その他 2.3帖 (1)
築年月物件情報の見方
2022年03月
都市計画物件情報の見方
調整
用途地域物件情報の見方
無指定
駐車場物件情報の見方
建ぺい率物件情報の見方
40%
容積率物件情報の見方
80%
容積率制限内容物件情報の見方
-
地目・地勢物件情報の見方
宅地
土地権利物件情報の見方
所有権
国土法届出物件情報の見方
不要(否)
引渡し物件情報の見方
相談 現況:居住中
施設物件情報の見方
-
設備物件情報の見方
-
備考
※対象不動産は市街化調整区域に存しますが、都市計画法第29条の規定に基づき、建替が可能である旨の見解を得ています。
建築基準法22条区域、法典風致地区
情報更新日物件情報の見方
2026/05/07
次回更新日物件情報の見方
2026/05/14
取引形態物件情報の見方
仲介

※本ページの記載内容は、情報更新日現在の情報です。また、記載内容と現状が異なる場合には現状を優先します。取引態様が仲介の場合には物件価格の他に仲介手数料及び消費税相当額を申しうけます。

同じエリアの物件

東武野田線の物件

近隣の物件

エリアや種別を変えて探す

市区郡
近隣のエリアから中古一戸建てを探す
町名
船橋市
東武野田線

千葉県船橋市藤原5丁目の中古一戸建ての中古一戸建住宅情報はこちら。不動産の売却や査定、購入・検索は大成有楽不動産販売のietan(イエタン)。首都圏の中古マンション、新築一戸建て、投資用不動産、土地など幅広くご提案いたします。

お気に入りに追加しました。

検索条件を保存しました。

この検索条件は、すでに保存されています。

検索条件の保存は10件までです。

お手数ですが、検索条件をご確認ください。

保存した条件を確認する

検索条件を保存します

マイページ会員の方

メールアドレス
パスワード

ログインして追加

マイページ会員ではない方

マイページ登録せずに検索条件を保存します。
マイページに登録いただくとスマートフォンや複数のPCで共有できます。

検索条件を追加