biz buy fav history ietanstyle mail mypage reform rent search sell tel house land mansion print point panorama save movie view door qanda useful office input lock label crown train add marker historyCheck catalogM catalogT catalogHG voice bus

<いい家探せる> ietan.jp(イエタン.jp)

大成有楽不動産販売

不動産の売買なら大成有楽不動産販売|ietan(イエタン)

Menu

トップ
マイページ
  1. 不動産の売買はietan(イエタン)
  2. 不動産の購入
  3. 中古一戸建て
  4. 神奈川県
  5. 神奈川県相模原市
  6. 相模原市緑区
  7. 神奈川県相模原市緑区原宿南1丁目の中古一戸建て
  • 中古一戸建住宅

神奈川県相模原市緑区原宿南1丁目の中古一戸建て

3,800万円

ローンシミュレーション

物件価格より月々のお支払額を概算で算出いたします。

借入金額
(物件価格)
3,800 万円
自己資金
(頭金)
万円
支払期間
金利
%
ボーナス時
支払額
万円

月々の支払額

0

所在地
神奈川県相模原市緑区原宿南1丁目
交通
横浜線「橋本」駅 バス10分「八幡神社前[相模原市]」バス停 徒歩5分
相模原線「橋本」駅 バス10分「八幡神社前[相模原市]」バス停 徒歩5分
横浜線「相原」駅 徒歩35分
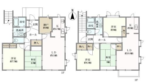
間取り
5LDK
建物面積
141.13㎡
土地面積
245.16㎡
築年月
1994年02月
構造
軽量鉄骨
階建
2階建
  • 外観
  • 外観
  • 西側前面道路
  • 北側前面道路

もっと見る

設備・物件のこだわりポイント

立地・交通
  • 複数路線利用可

土地の特徴
  • 低層住居専用地域

  • 公道に面する

  • 前面道路幅員6m以上

  • 土地・建物面積100㎡以上

駐車場
  • 駐車スペース有

その他
  • 空家・空室

物件概要

所在地物件情報の見方
神奈川県相模原市緑区原宿南1丁目
交通物件情報の見方
横浜線「橋本」駅 バス10分「八幡神社前[相模原市]」バス停 徒歩5分
相模原線「橋本」駅 バス10分「八幡神社前[相模原市]」バス停 徒歩5分
横浜線「相原」駅 徒歩35分
土地面積物件情報の見方
245.16㎡(74.16坪) 公簿
私道面積物件情報の見方
-
建物面積物件情報の見方
141.13㎡(42.69坪)
構造・階建物件情報の見方
軽量鉄骨 2階建
接面道路物件情報の見方
公道 西6.0m 接道幅:12.3m 北5.0m
間取り物件情報の見方
5LDK
築年月物件情報の見方
1994年02月
都市計画物件情報の見方
市街
用途地域物件情報の見方
第一種低層住居専用地域
駐車場物件情報の見方
建ぺい率物件情報の見方
50%
容積率物件情報の見方
80%
容積率制限内容物件情報の見方
-
地目・地勢物件情報の見方
宅地 平坦
土地権利物件情報の見方
所有権
国土法届出物件情報の見方
不要(否)
引渡し物件情報の見方
相談 現況:空家
施設物件情報の見方
-
設備物件情報の見方
-
備考
間取 2LDK(1階)+3LDK(2階) 景観法、宅地造成及び特定盛土等規制法 都市再生特別措置法 川尻原宿地区地区計画
地区計画により敷地の最低限度150㎡。建物は1階部分2階部分とそれぞれ区分登記されています。
情報更新日物件情報の見方
2026/04/17
次回更新日物件情報の見方
2026/04/24
取引形態物件情報の見方
仲介

※本ページの記載内容は、情報更新日現在の情報です。また、記載内容と現状が異なる場合には現状を優先します。取引態様が仲介の場合には物件価格の他に仲介手数料及び消費税相当額を申しうけます。

同じエリアの物件

横浜線の物件

近隣の物件

神奈川県相模原市緑区原宿南1丁目の中古一戸建ての中古一戸建住宅情報はこちら。不動産の売却や査定、購入・検索は大成有楽不動産販売のietan(イエタン)。首都圏の中古マンション、新築一戸建て、投資用不動産、土地など幅広くご提案いたします。

お気に入りに追加しました。

検索条件を保存しました。

この検索条件は、すでに保存されています。

検索条件の保存は10件までです。

お手数ですが、検索条件をご確認ください。

保存した条件を確認する

検索条件を保存します

マイページ会員の方

メールアドレス
パスワード

ログインして追加

マイページ会員ではない方

マイページ登録せずに検索条件を保存します。
マイページに登録いただくとスマートフォンや複数のPCで共有できます。

検索条件を追加