おすすめ物件特集

二世帯で暮らせる一戸建て
二世帯で暮らせる大きな中古一戸建て購入特集!
核家族化が進む時代ですが、あえて大きな一戸建てを2世帯、3世帯で住まう。そんなライフスタイルも案外人気があるようです。
4件
- 表示件数:
-
- 並び替え:
-
チェックした物件をまとめて
-
- 中古一戸建住宅
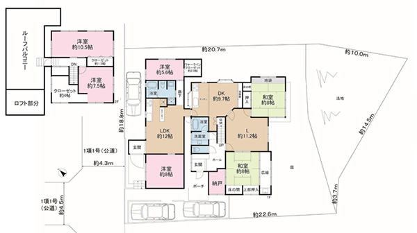
千葉県松戸市下矢切の中古一戸建て
- パノラマあり
6,200万円
- 北総線「矢切」駅 徒歩9分
- 千葉県松戸市下矢切
- 間取り
- 5LDK
- 建物面積
- 167.48㎡
- 土地面積
- 226.22㎡
- 築年月
- 1991年10月
- 構造
- 軽量鉄骨
- 階建
- 2階建
- 駅徒歩5分以内
- 角地
- 南道路
- 駐車スペース有
- 築後5年以内
- 空家・空室
- 公道に面する
■北総鉄道「矢切」駅徒歩9分 ■旭化成ヘーベルハウス施工 ■土地面積:226.22㎡(68.43坪)建物面積:167.48㎡(50.66坪) ■3DK+2LDK 二世帯住宅 ■駐車スペース2台分有り(車種制限有り) ■南面道路につき陽当り良好 ■徒歩5分圏内に小学校・公園があり、子育てにも安心です ■即引渡し可能 ■西側(県道市川松戸線)の道路端より50m超が近隣商業地域、それ以降は第一種中高層住居専用地域です
-
- 中古一戸建住宅
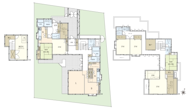
東京都世田谷区桜上水5丁目の中古一戸建て
15,980万円
- 京王線「桜上水」駅 徒歩4分
- 東京都世田谷区桜上水5丁目
- 間取り
- 4LDK
- 建物面積
- 159.48㎡
- 土地面積
- 162.79㎡
- 築年月
- 1999年08月
- 構造
- 木造
- 階建
- 2階建
- 駅徒歩5分以内
- 角地
- 南道路
- 駐車スペース有
- 築後5年以内
- 空家・空室
- 公道に面する
■京王線「桜上水」駅徒歩4分の好立地■第一種低層住居専用地域の閑静な住宅街■玄関別の2世帯住宅(2LDK+2LDK+納戸)■建物面積:159.48㎡、土地面積:162.79㎡■南向きバルコニーにつき陽当たり通風良好■リビング・マスターベッドルームには床暖房有■南向きバルコニーにつき、陽当たり通風良好■各居室、床下収納など、収納豊富な間取り■追い焚き機能あり■駐車スペースあり(車種制限あり)■スーパー、コンビニ徒歩5分圏内
-
- 中古一戸建住宅
神奈川県横浜市中区西之谷町の中古一戸建て
5,280万円
- 京浜東北線「山手」駅 徒歩13分
- 神奈川県横浜市中区西之谷町
- 間取り
- 3SLDK
- 建物面積
- 145.04㎡
- 土地面積
- 219.93㎡
- 築年月
- 1994年10月
- 構造
- 軽量鉄骨
- 階建
- 2階建
- 駅徒歩5分以内
- 角地
- 南道路
- 駐車スペース有
- 築後5年以内
- 空家・空室
- 公道に面する
■JR京浜東北・根岸線「山手」駅徒歩13分■積水ハウス(株)施工の二世帯注文住宅・2LDK+1SLDK■大型ハイルーフ車3台縦列駐車可能です!■1階リビングは天井高約2.5mの明るく開放感あふれる空間です■2階リビングはバルコニーに面した開放感のあるお部屋です。収納豊富なグルニエ付き!■全居室に収納スペースを完備した収納豊富な間取りです■お料理に集中しやすい独立型キッチン■キッチン・浴室・洗面・トイレなどの水回りに換気がしやすい窓付き■第一種低層住居専用地域内の閑静な住宅地
-
- 中古一戸建住宅
神奈川県横浜市中区本牧緑ケ丘の中古一戸建て
15,000万円
- 根岸線「山手」駅 徒歩12分
- 神奈川県横浜市中区本牧緑ケ丘
- 間取り
- 3LDK
- 建物面積
- 196.80㎡
- 土地面積
- 205.34㎡
- 築年月
- 1995年06月
- 構造
- 木造
- 階建
- 2階建
- 駅徒歩5分以内
- 角地
- 南道路
- 駐車スペース有
- 築後5年以内
- 空家・空室
- 公道に面する
■JR根岸線「山手」駅徒歩約12分■土地面積205.34平米 建物面積196.80平米■間取タイプ 1階に2LDK2階に1LDK カースペース2台可(車種による)■2世帯住宅にもお使いいただけます。■1階にシャワールームとバスルームあり■ウォークインクローゼットあり 収納楽々!
チェックした物件をまとめて
4件
お気に入りに追加しました。
検索条件を保存しました。
この検索条件は、すでに保存されています。
検索条件を保存します