biz buy fav history ietanstyle mail mypage reform rent search sell tel house land mansion print point panorama save movie view door qanda useful office input lock label crown train add marker historyCheck catalogM catalogT catalogHG voice bus

<いい家探せる> ietan.jp(イエタン.jp)

大成有楽不動産販売

不動産の売買なら大成有楽不動産販売|ietan(イエタン)

Menu

トップ
マイページ
  1. 不動産の売買はietan(イエタン)
  2. 不動産の購入
  3. 中古一戸建て
  4. 東京都
  5. 東京都下
  6. 町田市
  7. 東京都町田市本町田の中古一戸建て
  • NEW
  • 中古一戸建住宅

東京都町田市本町田の中古一戸建て

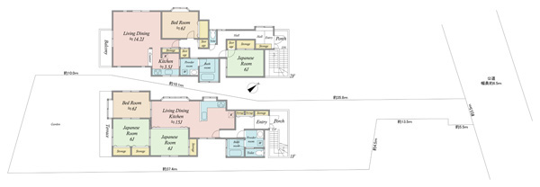
■1階3LDK、2階2LDKの2世帯住宅■賃貸併用可能な住宅です■第一種低層住居専用地域につき住環境良好!■豊かな緑に恵まれた住環境です■土地100坪以上のゆとりある敷地には最大3台駐車可能!■小屋裏収納、ウッドデッキ有り■多目的に利用可能な10坪以上の庭があります■太陽光パネル搭載・オール電化住宅■2階17.7帖LDKと隣接したウッドデッキあります

5,500万円

ローンシミュレーション

物件価格より月々のお支払額を概算で算出いたします。

借入金額
(物件価格)
5,500 万円
自己資金
(頭金)
万円
支払期間
金利
%
ボーナス時
支払額
万円

月々の支払額

0

所在地
東京都町田市本町田
交通
小田急線「町田」駅 バス13分「第三小学校前」バス停 徒歩3分
横浜線「町田」駅 バス13分「第三小学校前」バス停 徒歩3分
間取り
5LDK
建物面積
97.38㎡
土地面積
376.67㎡
築年月
1995年10月
構造
木造
階建
2階建
  • 1階リビング
  • 1階リビング
  • 2階リビング
  • 2階リビング
  • 1階キッチン
  • 1階キッチン
  • 2階キッチン
  • 1階洗面室
  • 1階浴室
  • 2階洗面室
  • 2階浴室
  • 2階ウッドデッキ
  • 2階からの眺望
  • 1階テラス側和室
  • 1階テラス側和室
  • 1階リビング横和室
  • 1階リビング横和室
  • 1階洋室
  • 1階洋室
  • 2階洋室
  • 2階和室

もっと見る

設備・物件のこだわりポイント

立地・交通
  • 複数路線利用可

土地の特徴
  • 低層住居専用地域

  • 公道に面する

  • 前面道路幅員6m以上

部屋
  • LDK15帖以上

設備
  • 太陽光発電

  • 追い焚き

駐車場
  • 駐車スペース有

その他
  • 二世帯向け

  • 賃貸併用または賃貸併用可

周辺施設

ロピア町田店
徒歩13分(1015m)
Santoku本町田店
徒歩17分(1345m)
オーケー町田森野店
徒歩18分(1375m)
ローソン本町田店
徒歩6分(475m)
セブンイレブン町田本町田中町店
徒歩13分(1000m)

物件概要

所在地物件情報の見方
東京都町田市本町田
交通物件情報の見方
小田急線「町田」駅 バス13分「第三小学校前」バス停 徒歩3分
横浜線「町田」駅 バス13分「第三小学校前」バス停 徒歩3分
土地面積物件情報の見方
376.67㎡(113.94坪) 公簿
私道面積物件情報の見方
-
建物面積物件情報の見方
97.38㎡(29.45坪)
構造・階建物件情報の見方
木造 2階建
接面道路物件情報の見方
公道 北東6.5m 接道幅:3.5m
間取り物件情報の見方
5LDK
築年月物件情報の見方
1995年10月
都市計画物件情報の見方
市街
用途地域物件情報の見方
第一種低層住居専用地域
駐車場物件情報の見方
駐車場有 
建ぺい率物件情報の見方
40%
容積率物件情報の見方
80%
容積率制限内容物件情報の見方
-
地目・地勢物件情報の見方
宅地
土地権利物件情報の見方
所有権
国土法届出物件情報の見方
不要(否)
引渡し物件情報の見方
相談 現況:居住中
施設物件情報の見方
-
設備物件情報の見方
水道:公営 ガス:なし(オール電化) 汚水:公共下水 雑排水:公共下水 
備考
※路地状面積:約42.8m2
情報更新日物件情報の見方
2026/04/30
次回更新日物件情報の見方
2026/05/07
取引形態物件情報の見方
仲介

※本ページの記載内容は、情報更新日現在の情報です。また、記載内容と現状が異なる場合には現状を優先します。取引態様が仲介の場合には物件価格の他に仲介手数料及び消費税相当額を申しうけます。

同じエリアの物件

小田急線の物件

近隣の物件

エリアや種別を変えて探す

市区郡
近隣のエリアから中古一戸建てを探す
町名
町田市
横浜線
小田急線

東京都町田市本町田の中古一戸建ての中古一戸建住宅情報はこちら。不動産の売却や査定、購入・検索は大成有楽不動産販売のietan(イエタン)。首都圏の中古マンション、新築一戸建て、投資用不動産、土地など幅広くご提案いたします。

お気に入りに追加しました。

検索条件を保存しました。

この検索条件は、すでに保存されています。

検索条件の保存は10件までです。

お手数ですが、検索条件をご確認ください。

保存した条件を確認する

検索条件を保存します

マイページ会員の方

メールアドレス
パスワード

ログインして追加

マイページ会員ではない方

マイページ登録せずに検索条件を保存します。
マイページに登録いただくとスマートフォンや複数のPCで共有できます。

検索条件を追加