biz buy fav history ietanstyle mail mypage reform rent search sell tel house land mansion print point panorama save movie view door qanda useful office input lock label crown train add marker historyCheck catalogM catalogT catalogHG voice bus

<いい家探せる> ietan.jp(イエタン.jp)

大成有楽不動産販売

不動産の売買なら大成有楽不動産販売|ietan(イエタン)

Menu

トップ
マイページ
  1. 不動産の売買はietan(イエタン)
  2. 不動産の購入
  3. 土地
  4. 東京都
  5. 東京23区内
  6. 足立区
  7. 東京都足立区西伊興4丁目の土地

東京都足立区西伊興4丁目の土地

■北東の角地■整形地■建築条件はございません。お好きなハウスメーカーで建築可能です■舎人公園まで徒歩7分(約530m)舎人公園は東京都の総合公園です。テニスコート、遊具広場、野球場、プレイグラウンドなどのスポーツ施設がたくさんあり多くの人が集まります。運動が大好きな方にお勧めです!!

4,800万円

ローンシミュレーション

物件価格より月々のお支払額を概算で算出いたします。

借入金額
(物件価格)
4,800 万円
自己資金
(頭金)
万円
支払期間
金利
%
ボーナス時
支払額
万円

月々の支払額

0

所在地
東京都足立区西伊興4丁目
交通
伊勢崎線「竹ノ塚」駅 徒歩18分
日暮里舎人「舎人」駅 徒歩17分
土地面積
135.97㎡
建築条件
条件無
建ぺい率
50%
容積率
150%
地目
宅地
地勢
平坦
  • 東武伊勢崎線「竹ノ塚」駅 徒歩18分、日暮里舎人ライナー「舎人」駅 徒歩17分 北東の角地です
  • 古屋有り:木造瓦・銅板葺2階建、床面積合計98.53平米、昭和55年8月建築
  • 接面道路:公道 東 5.4m
  • 接面道路:私道 北 4m
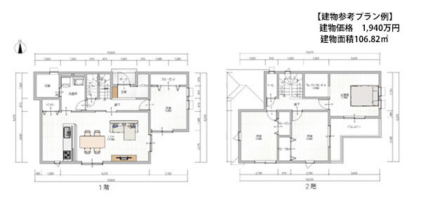
  • 建物参考プラン例

もっと見る

設備・物件のこだわりポイント

立地・交通
  • 複数路線利用可

  • スーパー徒歩5分以内

取引条件
  • 建築条件なし

土地の特徴
  • 角地

  • 低層住居専用地域

  • 公道に面する

周辺施設

ライフ竹ノ塚店
徒歩3分(200m)
セブンイレブン足立伊興番田店
徒歩4分(270m)
どらっぐぱぱす伊興店
徒歩4分(270m)
足立区立伊興小学校
徒歩10分(730m)
足立区立伊興中学校
徒歩5分(340m)

物件概要

所在地物件情報の見方
東京都足立区西伊興4丁目
交通物件情報の見方
伊勢崎線「竹ノ塚」駅 徒歩18分
日暮里舎人「舎人」駅 徒歩17分
土地面積物件情報の見方
135.97㎡(41.13坪) 公簿
私道面積物件情報の見方
29.31㎡(8.86坪)
接面道路物件情報の見方
公道 東5.4m 私道 北4.0m
地目・地勢物件情報の見方
宅地 平坦
都市計画物件情報の見方
市街
用途地域物件情報の見方
第一種低層住居専用地域
国土法届出物件情報の見方
不要(否)
建ぺい率物件情報の見方
50%
容積率物件情報の見方
150%
建築条件物件情報の見方
条件無
容積率制限内容物件情報の見方
-
土地権利物件情報の見方
所有権
引渡し物件情報の見方
相談 現況:古家有
設備物件情報の見方
水道:公営 ガス:都市ガス 汚水:公共下水 雑排水:公共下水 
備考
私道負担割合:1/1 古屋有り:木造瓦・銅板葺2階建、床面積合計98.53m2、昭和55年8月建築
情報更新日物件情報の見方
2025/12/05
次回更新日物件情報の見方
2025/12/12
取引形態物件情報の見方
仲介

※本ページの記載内容は、情報更新日現在の情報です。また、記載内容と現状が異なる場合には現状を優先します。取引態様が仲介の場合には物件価格の他に仲介手数料及び消費税相当額を申しうけます。

同じエリアの物件

伊勢崎線の物件

近隣の物件

東京都足立区西伊興4丁目の土地の売地情報はこちら。不動産の売却や査定、購入・検索は大成有楽不動産販売のietan(イエタン)。首都圏の中古マンション、新築一戸建て、投資用不動産、土地など幅広くご提案いたします。

お気に入りに追加しました。

検索条件を保存しました。

この検索条件は、すでに保存されています。

検索条件の保存は10件までです。

お手数ですが、検索条件をご確認ください。

保存した条件を確認する

検索条件を保存します

マイページ会員の方

メールアドレス
パスワード

ログインして追加

マイページ会員ではない方

マイページ登録せずに検索条件を保存します。
マイページに登録いただくとスマートフォンや複数のPCで共有できます。

検索条件を追加