biz buy fav history ietanstyle mail mypage reform rent search sell tel house land mansion print point panorama save movie view door qanda useful office input lock label crown train add marker historyCheck catalogM catalogT catalogHG voice bus

<いい家探せる> ietan.jp(イエタン.jp)

大成有楽不動産販売

不動産の売買なら大成有楽不動産販売|ietan(イエタン)

Menu

トップ
マイページ
  1. 不動産の売買はietan(イエタン)
  2. 不動産の購入
  3. 土地
  4. 東京都
  5. 東京都下
  6. 西東京市
  7. 東京都西東京市中町5丁目の土地

東京都西東京市中町5丁目の土地

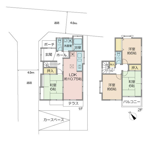
■上物 4LDK 86.48㎡ 木造2階建■約10.75帖のLDK

3,480万円

ローンシミュレーション

物件価格より月々のお支払額を概算で算出いたします。

借入金額
(物件価格)
3,480 万円
自己資金
(頭金)
万円
支払期間
金利
%
ボーナス時
支払額
万円

月々の支払額

0

所在地
東京都西東京市中町5丁目
交通
西武新宿線「東伏見」駅 徒歩15分
土地面積
90.92㎡
建築条件
条件無
建ぺい率
50%
容積率
100%
地目
宅地
地勢
平坦
  • 角地に立地。景観の保たれた、低層区域。
  • 約10.75帖のLDK。隣室は和室となっています。
  • 2面採光。隣室の和室はリビングからも目が届くので、お子様のプレイルームにぴったりですね
  • 換気のしやすい二方面窓。
  • リビング空間と一体とし、キッチンにいることが負担にならないよう居心地のよさを重視した空間。
  • 清潔感のある美しいデザインです。毎日のことだから使いやすさを重視。
  • 鏡の両脇には収納トレイが設置。歯ブラシや化粧水など毎日使うものがすぐに手に取れる便利な収納棚です。
  • 窓付の浴室。換気扇と併用することで優れた通気環境になり、カビの発生を防ぎます。
  • 窓を開けることで自然換気が可能。こもった匂いも迅速に換気が行えます。
  • 全居室6帖以上の4LDK。お子様のお部屋を作れたり、ワークスペースを確保したりが叶うゆとりの間取。
  • 全居室6帖以上。お子様の成長や家族構成の変化にも柔軟に対応できる居室数。
  • たっぷりの収納スペースで快適に暮らせます
  • 和の風情を演出する内障子付
  • 布団や季節ものの家電もすっきり仕舞える押し入れ収納。
  • 大容量収納の押入。収納ボックスやハンガーパイプを活用したり、自分の使いやすいアレンジができるのも魅力
  • 和の風情を演出する内障子付
  • 上手に活用したい隠れた収納スペース
  • 隠れた収納スペース。ご家族の思い出の品もまるっと収納可能。
  • 障子からは柔らかい日の差し込む玄関。
  • 雨から車を守る屋根付きのカースペース。
  • 角地に立地。景観の保たれた、低層区域。
  • 角地に立地。景観の保たれた、低層区域。
  • 全居室6帖以上のゆとりある間取り

もっと見る

設備・物件のこだわりポイント

立地・交通
  • 小学校徒歩5分以内

取引条件
  • 建築条件なし

土地の特徴
  • 角地

  • 低層住居専用地域

周辺施設

デポー西東京
徒歩10分(750m)
セブンイレブン 西東京中町2丁目店
徒歩9分(660m)
西東京市立碧山小学校
徒歩5分(370m)
西東京市立明保中学校
徒歩10分(770m)
なえぎ山公園
徒歩5分(360m)

物件概要

所在地物件情報の見方
東京都西東京市中町5丁目
交通物件情報の見方
西武新宿線「東伏見」駅 徒歩15分
土地面積物件情報の見方
90.92㎡(27.5坪) 公簿
私道面積物件情報の見方
6.80㎡(2.05坪)
接面道路物件情報の見方
地目・地勢物件情報の見方
宅地 平坦
都市計画物件情報の見方
市街
用途地域物件情報の見方
第一種低層住居専用地域
国土法届出物件情報の見方
不要(否)
建ぺい率物件情報の見方
50%
容積率物件情報の見方
100%
建築条件物件情報の見方
条件無
容積率制限内容物件情報の見方
-
土地権利物件情報の見方
所有権
引渡し物件情報の見方
相談 現況:古家有
設備物件情報の見方
水道:公営 ガス:都市ガス 汚水:公共下水 雑排水:公共下水 
備考
通路:北東約7.5m(水路約3.65m含む)、北西約4m。
情報更新日物件情報の見方
2026/04/20
次回更新日物件情報の見方
2026/04/27
取引形態物件情報の見方
仲介

※本ページの記載内容は、情報更新日現在の情報です。また、記載内容と現状が異なる場合には現状を優先します。取引態様が仲介の場合には物件価格の他に仲介手数料及び消費税相当額を申しうけます。

同じエリアの物件

西武新宿線の物件

近隣の物件

東京都西東京市中町5丁目の土地の売地情報はこちら。不動産の売却や査定、購入・検索は大成有楽不動産販売のietan(イエタン)。首都圏の中古マンション、新築一戸建て、投資用不動産、土地など幅広くご提案いたします。

お気に入りに追加しました。

検索条件を保存しました。

この検索条件は、すでに保存されています。

検索条件の保存は10件までです。

お手数ですが、検索条件をご確認ください。

保存した条件を確認する

検索条件を保存します

マイページ会員の方

メールアドレス
パスワード

ログインして追加

マイページ会員ではない方

マイページ登録せずに検索条件を保存します。
マイページに登録いただくとスマートフォンや複数のPCで共有できます。

検索条件を追加