biz buy fav history ietanstyle mail mypage reform rent search sell tel house land mansion print point panorama save movie view door qanda useful office input lock label crown train add marker historyCheck catalogM catalogT catalogHG voice bus

<いい家探せる> ietan.jp(イエタン.jp)

大成有楽不動産販売

不動産の売買なら大成有楽不動産販売|ietan(イエタン)

Menu

トップ
マイページ
  1. 不動産の売買はietan(イエタン)
  2. 不動産の購入
  3. 中古マンション
  4. 東京都
  5. 東京23区内
  6. 板橋区
  7. セザールリバーサイドときわ台
  • 中古マンション

6,680万円

ローンシミュレーション

物件価格より月々のお支払額を概算で算出いたします。

借入金額
(物件価格)
6,680 万円
自己資金
(頭金)
万円
支払期間
金利
%
ボーナス時
支払額
万円

月々の支払額

0

所在地
東京都板橋区東山町
交通
東武東上線「ときわ台」駅 徒歩14分
副都心線「小竹向原」駅 徒歩16分
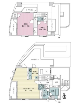
間取り
2LDK
専有面積
94.15㎡
築年月
2002年06月
所在階
7/8階
採光方位
西
  • 2002年6月築。総戸数24戸のマンションです。
  • 陽光が差し込む、明るい空間。ご家族皆様でゆったりとお寛ぎいただけます。
  • 料理をしながらご家族や友人との会話を楽しめる、対面式キッチンが採用されています。
  • お掃除がしやすいIHクッキングヒーターです。
  • キッチン換気扇

もっと見る

設備・物件のこだわりポイント

立地・交通
  • 複数路線利用可

その他
  • 空家・空室

物件概要

物件名物件情報の見方
セザールリバーサイドときわ台
所在地物件情報の見方
東京都板橋区東山町
交通物件情報の見方
東武東上線「ときわ台」駅 徒歩14分
副都心線「小竹向原」駅 徒歩16分
専有面積物件情報の見方
94.15㎡(28.48坪) 壁芯
バルコニー
(テラス)面積
物件情報の見方
12.15㎡ (3.67坪)
専用庭面積物件情報の見方
-(-)
ルーフバルコニー面積物件情報の見方
27.96㎡(8.45坪)
間取り物件情報の見方
2LDK
構造・階建物件情報の見方
RC 8階建 7階部分
採光方位物件情報の見方
西
築年月物件情報の見方
2002年06月
総戸数物件情報の見方
24戸
管理形態/方式物件情報の見方
全部委託 / 日勤
管理会社物件情報の見方
管理費物件情報の見方
18,900円
修繕積立金物件情報の見方
30,500円
駐車場物件情報の見方
-
施設物件情報の見方
-
施工会社物件情報の見方
-
分譲会社物件情報の見方
-
国土法届出物件情報の見方
-
用途地域物件情報の見方
近隣商業地域・第一種中高層住居専用地域
引渡し物件情報の見方
相談 現況:空家
土地権利物件情報の見方
所有権
設備物件情報の見方
-
備考
日勤管理 掲載中の家具・調度品は販売価格に含まれません。
情報更新日物件情報の見方
2026/02/17
次回更新日物件情報の見方
2026/02/24
取引形態物件情報の見方
仲介

※本ページの記載内容は、情報更新日現在の情報です。また、記載内容と現状が異なる場合には現状を優先します。取引態様が仲介の場合には物件価格の他に仲介手数料及び消費税相当額を申しうけます。

同じエリアの物件

同じエリアの新着物件

東武東上線の物件

近隣の物件

エリアや種別を変えて探す

市区郡
近隣のエリアから中古マンションを探す
町名
板橋区
副都心線
東武東上線

セザールリバーサイドときわ台の中古マンション情報はこちら。不動産の売却や査定、購入・検索は大成有楽不動産販売のietan(イエタン)。首都圏の中古マンション、新築一戸建て、投資用不動産、土地など幅広くご提案いたします。

お気に入りに追加しました。

検索条件を保存しました。

この検索条件は、すでに保存されています。

検索条件の保存は10件までです。

お手数ですが、検索条件をご確認ください。

保存した条件を確認する

検索条件を保存します

マイページ会員の方

メールアドレス
パスワード

ログインして追加

マイページ会員ではない方

マイページ登録せずに検索条件を保存します。
マイページに登録いただくとスマートフォンや複数のPCで共有できます。

検索条件を追加