biz buy fav history ietanstyle mail mypage reform rent search sell tel house land mansion print point panorama save movie view door qanda useful office input lock label crown train add marker historyCheck catalogM catalogT catalogHG voice bus

<いい家探せる> ietan.jp(イエタン.jp)

大成有楽不動産販売

不動産の売買なら大成有楽不動産販売|ietan(イエタン)

Menu

トップ
マイページ
  1. 不動産の売買はietan(イエタン)
  2. 不動産の購入
  3. 中古マンション
  4. 千葉県
  5. 千葉県市部
  6. 松戸市
  7. ダイアパレス常盤平ヒルズ
  • 中古マンション

2,980万円

ローンシミュレーション

物件価格より月々のお支払額を概算で算出いたします。

借入金額
(物件価格)
2,980 万円
自己資金
(頭金)
万円
支払期間
金利
%
ボーナス時
支払額
万円

月々の支払額

0

所在地
千葉県松戸市常盤平4丁目
交通
京成松戸線「常盤平」駅 徒歩11分
京成松戸線「五香」駅 徒歩13分
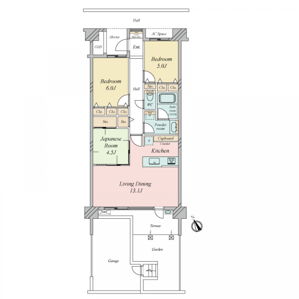
間取り
3LDK
専有面積
73.78㎡
築年月
2007年03月
所在階
1/7階
採光方位
南東

もっと見る

設備・物件のこだわりポイント

部屋の位置
  • 南向き(南東・南西含)

物件概要

物件名物件情報の見方
ダイアパレス常盤平ヒルズ
所在地物件情報の見方
千葉県松戸市常盤平4丁目
交通物件情報の見方
京成松戸線「常盤平」駅 徒歩11分
京成松戸線「五香」駅 徒歩13分
専有面積物件情報の見方
73.78㎡(22.31坪) 壁芯
バルコニー
(テラス)面積
物件情報の見方
11.34㎡ (3.43坪)
専用庭面積物件情報の見方
-(-)
間取り物件情報の見方
3LDK
構造・階建物件情報の見方
RC 7階(地下1階)建 1階部分
採光方位物件情報の見方
南東
築年月物件情報の見方
2007年03月
総戸数物件情報の見方
60戸
管理形態/方式物件情報の見方
全部委託 / 日勤
管理会社物件情報の見方
管理費物件情報の見方
14,050円
修繕積立金物件情報の見方
17,330円
駐車場物件情報の見方
施設物件情報の見方
-
施工会社物件情報の見方
-
分譲会社物件情報の見方
-
国土法届出物件情報の見方
不要(否)
用途地域物件情報の見方
第一種中高層住居専用地域
引渡し物件情報の見方
相談 現況:居住中
土地権利物件情報の見方
所有権
設備物件情報の見方
-
備考
〜専用庭・専用駐車場〜〜全居室収納・和室〜
情報更新日物件情報の見方
2026/04/15
次回更新日物件情報の見方
2026/04/22
取引形態物件情報の見方
仲介

※本ページの記載内容は、情報更新日現在の情報です。また、記載内容と現状が異なる場合には現状を優先します。取引態様が仲介の場合には物件価格の他に仲介手数料及び消費税相当額を申しうけます。

同じエリアの物件

京成松戸線の物件

近隣の物件

エリアや種別を変えて探す

市区郡
近隣のエリアから中古マンションを探す
町名
松戸市
京成松戸線

ダイアパレス常盤平ヒルズの中古マンション情報はこちら。不動産の売却や査定、購入・検索は大成有楽不動産販売のietan(イエタン)。首都圏の中古マンション、新築一戸建て、投資用不動産、土地など幅広くご提案いたします。

お気に入りに追加しました。

検索条件を保存しました。

この検索条件は、すでに保存されています。

検索条件の保存は10件までです。

お手数ですが、検索条件をご確認ください。

保存した条件を確認する

検索条件を保存します

マイページ会員の方

メールアドレス
パスワード

ログインして追加

マイページ会員ではない方

マイページ登録せずに検索条件を保存します。
マイページに登録いただくとスマートフォンや複数のPCで共有できます。

検索条件を追加