北千住センター
営業時間:10:00~18:00 / 定休日:毎週火曜日・水曜日
物件番号:AAA09175
営業時間:10:00~18:00 / 定休日:毎週火曜日・水曜日
物件番号:AAA09175
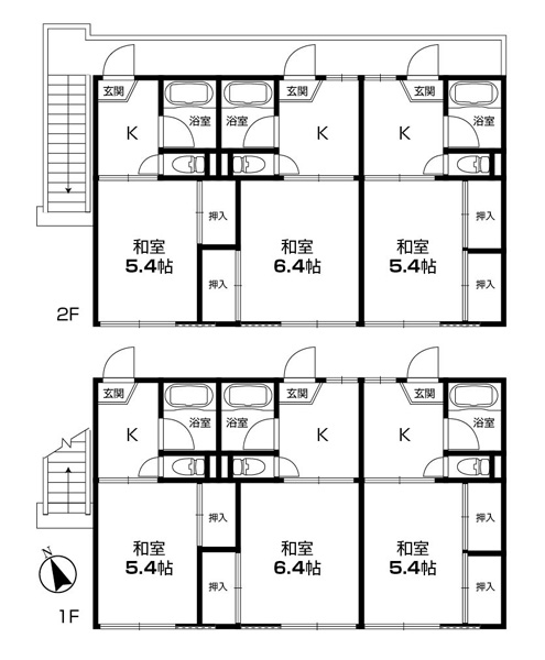
オーナーチェンジ物件■全6戸 4室稼働中■積水ハウス施工 軽量鉄骨造 2階建 1K×6室 ■小田急線・相鉄線「海老名」駅 徒歩14分/JR相模線「海老名」駅 徒歩13分■月額賃料収入 : 256,000円※賃料+共益費(2025年8月1日現在)、年間賃料収入 : 3,072,000円、表面利回り : 8.08%
複数路線利用可
公道に面する
土地・建物面積100㎡以上

杉渕 寿一
※本ページの記載内容は、情報更新日現在の情報です。また、記載内容と現状が異なる場合には現状を優先します。取引態様が仲介の場合には物件価格の他に仲介手数料及び消費税相当額を申しうけます。
担当営業センター
120-0034足立区千住3-98 千住ミルディスII番館 4F
営業時間:10:00~18:00 / 定休日:毎週火曜日・水曜日
神奈川県海老名市国分北1丁目のオーナーチェンジ「アパート一棟」情報はこちら。不動産の売却や査定、購入・検索は大成有楽不動産販売のietan(イエタン)。首都圏の中古マンション、新築一戸建て、投資用不動産、土地など幅広くご提案いたします。
お気に入りに追加しました。
検索条件を保存しました。
この検索条件は、すでに保存されています。
検索条件を保存します
・前面道路 公道(位置指定道路 幅員4m)
・建物床面積:1階 60.96㎡、2階 60.96㎡
※賃料等の収入や利回りは、将来にわたり、確実に得られることを保証するものではありません。
※賃料等は、賃貸中のものについては現在の賃料等で、新築および空室または一部空き有のものについては、周辺の賃料相場に基づき、満室になった場合を想定して表示しています。
※利回りは、現況または満室想定時の賃料等の収入に基づく単純利回り(賃料等の年間合計金額÷購入価格×100)で、公租公課や維持管理費等の必要経費は控除されていません。