biz buy fav history ietanstyle mail mypage reform rent search sell tel house land mansion print point panorama save movie view door qanda useful office input lock label crown train add marker historyCheck catalogM catalogT catalogHG voice bus

<いい家探せる> ietan.jp(イエタン.jp)

大成有楽不動産販売

不動産の売買なら大成有楽不動産販売|ietan(イエタン)

Menu

トップ
マイページ
  1. 不動産の売買はietan(イエタン)
  2. 不動産の購入
  3. 事業用
  4. 事業用不動産の購入
  5. 神奈川県相模原市南区若松3丁目の事業用「事務所」

神奈川県相模原市南区若松3丁目の事業用「事務所」

4,980万円

ローンシミュレーション

物件価格より月々のお支払額を概算で算出いたします。

借入金額
(物件価格)
4,980 万円
自己資金
(頭金)
万円
支払期間
金利
%
ボーナス時
支払額
万円

月々の支払額

0

所在地
神奈川県相模原市南区若松3丁目
交通
小田急線「相模大野」駅 徒歩19分
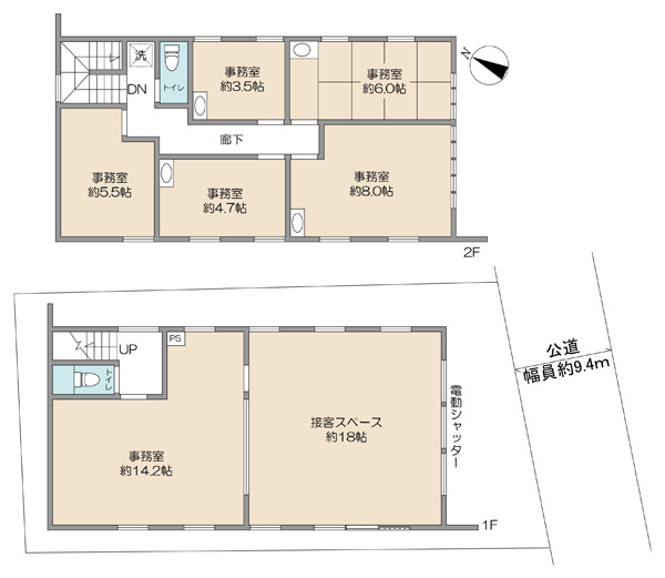
建物面積
119.24㎡
土地面積
100.06㎡
築年月
2013年11月
構造
木造
階建
2階建

もっと見る

設備・物件のこだわりポイント

土地の特徴
  • 公道に面する

  • 前面道路幅員6m以上

  • 土地・建物面積100㎡以上

物件概要

所在地物件情報の見方
神奈川県相模原市南区若松3丁目
交通物件情報の見方
小田急線「相模大野」駅 徒歩19分
土地面積物件情報の見方
100.06㎡(30.26坪) 公簿
私道面積物件情報の見方
-
建物面積物件情報の見方
119.24㎡(36.07坪)
構造・階建物件情報の見方
木造 2階建
接面道路物件情報の見方
公道 南東9.4m 接道幅:7.4m
築年月物件情報の見方
2013年11月
都市計画物件情報の見方
市街
用途地域物件情報の見方
第一種住居地域
駐車場物件情報の見方
-
建ぺい率物件情報の見方
60%
容積率物件情報の見方
200%
容積率制限内容物件情報の見方
-
地目・地勢物件情報の見方
宅地 平坦
国土法届出物件情報の見方
不要(否)
土地権利物件情報の見方
所有権
引渡し物件情報の見方
相談 現況:空家
賃貸中の内訳
-
設備物件情報の見方
水道:公営 ガス:なし 汚水:公共下水 雑排水:公共下水 
備考
-
情報更新日物件情報の見方
2026/05/01
次回更新日物件情報の見方
2026/05/08
取引形態物件情報の見方
仲介

※本ページの記載内容は、情報更新日現在の情報です。また、記載内容と現状が異なる場合には現状を優先します。取引態様が仲介の場合には物件価格の他に仲介手数料及び消費税相当額を申しうけます。

神奈川県相模原市南区若松3丁目の事業用「事務所」情報はこちら。不動産の売却や査定、購入・検索は大成有楽不動産販売のietan(イエタン)。首都圏の中古マンション、新築一戸建て、投資用不動産、土地など幅広くご提案いたします。

お気に入りに追加しました。

検索条件を保存しました。

この検索条件は、すでに保存されています。

検索条件の保存は10件までです。

お手数ですが、検索条件をご確認ください。

保存した条件を確認する

検索条件を保存します

マイページ会員の方

メールアドレス
パスワード

ログインして追加

マイページ会員ではない方

マイページ登録せずに検索条件を保存します。
マイページに登録いただくとスマートフォンや複数のPCで共有できます。

検索条件を追加