biz buy fav history ietanstyle mail mypage reform rent search sell tel house land mansion print point panorama save movie view door qanda useful office input lock label crown train add marker historyCheck catalogM catalogT catalogHG voice bus

<いい家探せる> ietan.jp(イエタン.jp)

大成有楽不動産販売

不動産の売買なら大成有楽不動産販売|ietan(イエタン)

Menu

トップ
マイページ
  1. 不動産の売買はietan(イエタン)
  2. 不動産の購入
  3. 中古マンション
  4. 東京都
  5. 東京23区内
  6. 港区
  7. 秀和田町レジデンス
  • 中古マンション

秀和田町レジデンス

5,480万円

ローンシミュレーション

物件価格より月々のお支払額を概算で算出いたします。

借入金額
(物件価格)
5,480 万円
自己資金
(頭金)
万円
支払期間
金利
%
ボーナス時
支払額
万円

月々の支払額

0

所在地
東京都港区芝浦2丁目
交通
山手線「田町」駅 徒歩12分
京浜東北線「田町」駅 徒歩12分
都営浅草線「三田」駅 徒歩14分
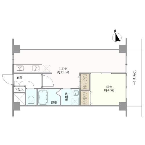
間取り
1LDK
専有面積
40.05㎡
築年月
1982年01月
所在階
6/11階
採光方位
南東
  • 建物外観 2026.1撮影
  • LDK 2026.2撮影
  • リビング 2026.2撮影
  • リビング 2026.2撮影
  • リビング 2026.2撮影

もっと見る

設備・物件のこだわりポイント

立地・交通
  • 複数路線利用可

部屋の位置
  • 南向き(南東・南西含)

その他
  • 空家・空室

取引条件
  • 即入居可

物件概要

物件名物件情報の見方
秀和田町レジデンス
所在地物件情報の見方
東京都港区芝浦2丁目
交通物件情報の見方
山手線「田町」駅 徒歩12分
京浜東北線「田町」駅 徒歩12分
都営浅草線「三田」駅 徒歩14分
専有面積物件情報の見方
40.05㎡(12.11坪) 壁芯
バルコニー
(テラス)面積
物件情報の見方
4.23㎡ (1.27坪)
専用庭面積物件情報の見方
-(-)
間取り物件情報の見方
1LDK
構造・階建物件情報の見方
SRC 11階建 6階部分
採光方位物件情報の見方
南東
築年月物件情報の見方
1982年01月
総戸数物件情報の見方
143戸
管理形態/方式物件情報の見方
全部委託 / 日勤
管理会社物件情報の見方
管理費物件情報の見方
9,810円
修繕積立金物件情報の見方
20,030円
駐車場物件情報の見方
施設物件情報の見方
-
施工会社物件情報の見方
-
分譲会社物件情報の見方
-
国土法届出物件情報の見方
不要(否)
用途地域物件情報の見方
準工業地域
引渡し物件情報の見方
即時 現況:空家
土地権利物件情報の見方
所有権
設備物件情報の見方
-
備考
2026.02リフォーム済(システムキッチン・ユニットバス・洗面化粧台・トイレ新規交換、クロス・フローリング新規貼替) 建物構造 鉄筋コンクリート造(一部)、家具・調度品は売買価格に含まれません。
駐輪場(年額):3,600円、バイク置場(年額)24,000円
情報更新日物件情報の見方
2026/04/15
次回更新日物件情報の見方
2026/04/22
取引形態物件情報の見方
仲介

※本ページの記載内容は、情報更新日現在の情報です。また、記載内容と現状が異なる場合には現状を優先します。取引態様が仲介の場合には物件価格の他に仲介手数料及び消費税相当額を申しうけます。

同じエリアの物件

同じエリアの新着物件

山手線の物件

近隣の物件

エリアや種別を変えて探す

市区郡
近隣のエリアから中古マンションを探す
町名
港区
都営浅草線
山手線
京浜東北線

秀和田町レジデンスの中古マンション情報はこちら。不動産の売却や査定、購入・検索は大成有楽不動産販売のietan(イエタン)。首都圏の中古マンション、新築一戸建て、投資用不動産、土地など幅広くご提案いたします。

お気に入りに追加しました。

検索条件を保存しました。

この検索条件は、すでに保存されています。

検索条件の保存は10件までです。

お手数ですが、検索条件をご確認ください。

保存した条件を確認する

検索条件を保存します

マイページ会員の方

メールアドレス
パスワード

ログインして追加

マイページ会員ではない方

マイページ登録せずに検索条件を保存します。
マイページに登録いただくとスマートフォンや複数のPCで共有できます。

検索条件を追加