biz buy fav history ietanstyle mail mypage reform rent search sell tel house land mansion print point panorama save movie view door qanda useful office input lock label crown train add marker historyCheck catalogM catalogT catalogHG voice bus

<いい家探せる> ietan.jp(イエタン.jp)

大成有楽不動産販売

不動産の売買なら大成有楽不動産販売|ietan(イエタン)

Menu

トップ
マイページ
  1. 不動産の売買はietan(イエタン)
  2. 不動産の購入
  3. 新築一戸建て
  4. 東京都
  5. 東京23区内
  6. 江戸川区
  7. 東京都江戸川区平井2丁目の新築一戸建て
  • 新築一戸建住宅
  • 新築

東京都江戸川区平井2丁目の新築一戸建て

・令和8年6月完成予定の新築戸建 ・LDK部分広々15帖超、1階洋室、2階LD部分床暖房有り ・周辺には公園等多数有り、環境良好 ・開口部が多く、明るい室内設計です。 〜仕様・構造・設備〜 ■カースペース有り(車種制限有り) ■浴室に窓有り ■カウンターキッチン ■バルコニー2面 ■納戸 ■TES温水式床暖房 ■宅配ボックス ■食器洗浄機 ■浴室換気乾燥機 ■トイレ窓有り ■洗面台3面鏡 ■浄水器一体型シャワー水栓 ■アクセントクロス etc.

6,480万円

ローンシミュレーション

物件価格より月々のお支払額を概算で算出いたします。

借入金額
(物件価格)
6,480 万円
自己資金
(頭金)
万円
支払期間
金利
%
ボーナス時
支払額
万円

月々の支払額

0

所在地
東京都江戸川区平井2丁目
交通
総武中央線「平井」駅 徒歩11分
間取り
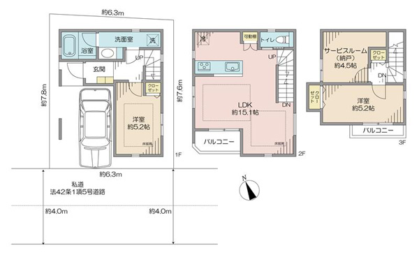
2SLDK
建物面積
83.32㎡
土地面積
49.39㎡
築年月
2026年06月
構造
木造
階建
3階建

設備・物件のこだわりポイント

部屋
  • LDK15帖以上

浴室・トイレ
  • 浴室乾燥機能

設備
  • 追い焚き

駐車場
  • 駐車スペース有

物件概要

所在地物件情報の見方
東京都江戸川区平井2丁目
交通物件情報の見方
総武中央線「平井」駅 徒歩11分
土地面積物件情報の見方
49.39㎡(14.94坪) 公簿
私道面積物件情報の見方
-
建物面積物件情報の見方
83.32㎡(25.2坪)
構造・階建物件情報の見方
木造 3階建
接面道路物件情報の見方
私道 南西4.0m
間取り物件情報の見方
2SLDK
築年月物件情報の見方
2026年06月
都市計画物件情報の見方
市街
用途地域物件情報の見方
第一種住居地域
駐車場物件情報の見方
駐車場有 
建ぺい率物件情報の見方
60%
容積率物件情報の見方
160%
容積率制限内容物件情報の見方
-
地目・地勢物件情報の見方
宅地 平坦
土地権利物件情報の見方
所有権
国土法届出物件情報の見方
不要(否)
引渡し物件情報の見方
2026年07月上旬 現況:未完成
施設物件情報の見方
-
設備物件情報の見方
水道:公営 ガス:都市ガス 汚水:公共下水 雑排水:公共下水 
備考
※上記建物面積には、カースペース部分(6.34㎡)が含まれます
建築確認番号:第R07SHC124526号
情報更新日物件情報の見方
2026/03/19
次回更新日物件情報の見方
2026/03/26
取引形態物件情報の見方
仲介

※本ページの記載内容は、情報更新日現在の情報です。また、記載内容と現状が異なる場合には現状を優先します。取引態様が仲介の場合には物件価格の他に仲介手数料及び消費税相当額を申しうけます。

エリアや種別を変えて探す

市区郡
近隣のエリアから新築一戸建てを探す
町名
江戸川区
総武中央線

東京都江戸川区平井2丁目の新築一戸建ての新築一戸建住宅情報はこちら。不動産の売却や査定、購入・検索は大成有楽不動産販売のietan(イエタン)。首都圏の中古マンション、新築一戸建て、投資用不動産、土地など幅広くご提案いたします。

お気に入りに追加しました。

検索条件を保存しました。

この検索条件は、すでに保存されています。

検索条件の保存は10件までです。

お手数ですが、検索条件をご確認ください。

保存した条件を確認する

検索条件を保存します

マイページ会員の方

メールアドレス
パスワード

ログインして追加

マイページ会員ではない方

マイページ登録せずに検索条件を保存します。
マイページに登録いただくとスマートフォンや複数のPCで共有できます。

検索条件を追加