biz buy fav history ietanstyle mail mypage reform rent search sell tel house land mansion print point panorama save movie view door qanda useful office input lock label crown train add marker historyCheck catalogM catalogT catalogHG voice bus

<いい家探せる> ietan.jp(イエタン.jp)

大成有楽不動産販売

不動産の売買なら大成有楽不動産販売|ietan(イエタン)

Menu

トップ
マイページ
  1. 不動産の売買はietan(イエタン)
  2. 不動産の購入
  3. 新築一戸建て
  4. 千葉県
  5. 千葉県市部
  6. 習志野市
  7. 千葉県習志野市袖ケ浦6丁目の新築一戸建て
  • NEW
  • 新築一戸建住宅
  • 新築

千葉県習志野市袖ケ浦6丁目の新築一戸建て

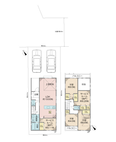
■3LDK+2S ■シロアリ保証5年 ■地盤保証20年 ■全室複層ガラス ■エコジョーズ ■24時間換気 ■トイレ2か所 ■アルミ樹脂複合サッシ ■浴室乾燥機 ■TVモニター付きインターホン ■ハンドシャワー付き洗面台 ■ベタ基礎 ■LDは上部吹き抜け ■小屋裏収納

5,280万円

ローンシミュレーション

物件価格より月々のお支払額を概算で算出いたします。

借入金額
(物件価格)
5,280 万円
自己資金
(頭金)
万円
支払期間
金利
%
ボーナス時
支払額
万円

月々の支払額

0

所在地
千葉県習志野市袖ケ浦6丁目
交通
総武中央線「幕張本郷」駅 徒歩19分
京葉線「新習志野」駅 バス6分「香澄小学校」バス停 徒歩8分
間取り
3SLDK
建物面積
111.37㎡
土地面積
127.28㎡
築年月
2026年08月
構造
木造
階建
2階建

設備・物件のこだわりポイント

立地・交通
  • 複数路線利用可

土地の特徴
  • 低層住居専用地域

  • 公道に面する

  • 前面道路幅員6m以上

  • 土地・建物面積100㎡以上

部屋
  • LDK12帖以上

  • LDK15帖以上

キッチン
  • カウンターキッチン

浴室・トイレ
  • 浴室乾燥機能

設備
  • 複層ガラス

セキュリティ
  • TVモニター付きインターホン

駐車場
  • 駐車場2台以上

  • 駐車スペース有

物件概要

所在地物件情報の見方
千葉県習志野市袖ケ浦6丁目
交通物件情報の見方
総武中央線「幕張本郷」駅 徒歩19分
京葉線「新習志野」駅 バス6分「香澄小学校」バス停 徒歩8分
土地面積物件情報の見方
127.28㎡(38.5坪) 公簿
私道面積物件情報の見方
-
建物面積物件情報の見方
111.37㎡(33.68坪)
構造・階建物件情報の見方
木造 2階建
接面道路物件情報の見方
公道 北東6.0m
間取り物件情報の見方
3SLDK
築年月物件情報の見方
2026年08月
都市計画物件情報の見方
市街
用途地域物件情報の見方
第一種低層住居専用地域
駐車場物件情報の見方
駐車場有 
建ぺい率物件情報の見方
50%
容積率物件情報の見方
100%
容積率制限内容物件情報の見方
-
地目・地勢物件情報の見方
宅地 平坦
土地権利物件情報の見方
所有権
国土法届出物件情報の見方
不要(否)
引渡し物件情報の見方
相談 現況:未完成
施設物件情報の見方
-
設備物件情報の見方
水道:公営 ガス:都市ガス 汚水:公共下水 雑排水:公共下水 
備考
建築確認番号:第25UDI1C建08757号
情報更新日物件情報の見方
2026/04/16
次回更新日物件情報の見方
2026/04/23
取引形態物件情報の見方
仲介

※本ページの記載内容は、情報更新日現在の情報です。また、記載内容と現状が異なる場合には現状を優先します。取引態様が仲介の場合には物件価格の他に仲介手数料及び消費税相当額を申しうけます。

近隣の物件

千葉県習志野市袖ケ浦6丁目の新築一戸建ての新築一戸建住宅情報はこちら。不動産の売却や査定、購入・検索は大成有楽不動産販売のietan(イエタン)。首都圏の中古マンション、新築一戸建て、投資用不動産、土地など幅広くご提案いたします。

お気に入りに追加しました。

検索条件を保存しました。

この検索条件は、すでに保存されています。

検索条件の保存は10件までです。

お手数ですが、検索条件をご確認ください。

保存した条件を確認する

検索条件を保存します

マイページ会員の方

メールアドレス
パスワード

ログインして追加

マイページ会員ではない方

マイページ登録せずに検索条件を保存します。
マイページに登録いただくとスマートフォンや複数のPCで共有できます。

検索条件を追加